
BSV —
Ecole professionnelle Viège
2004 - 2009



































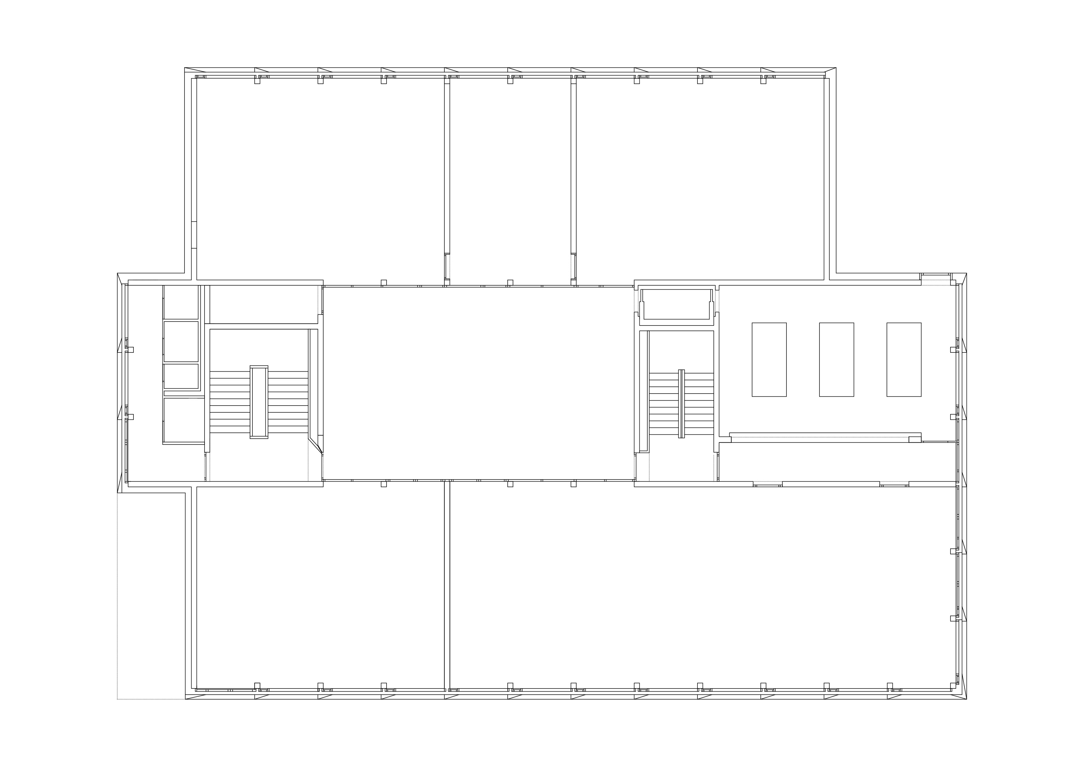
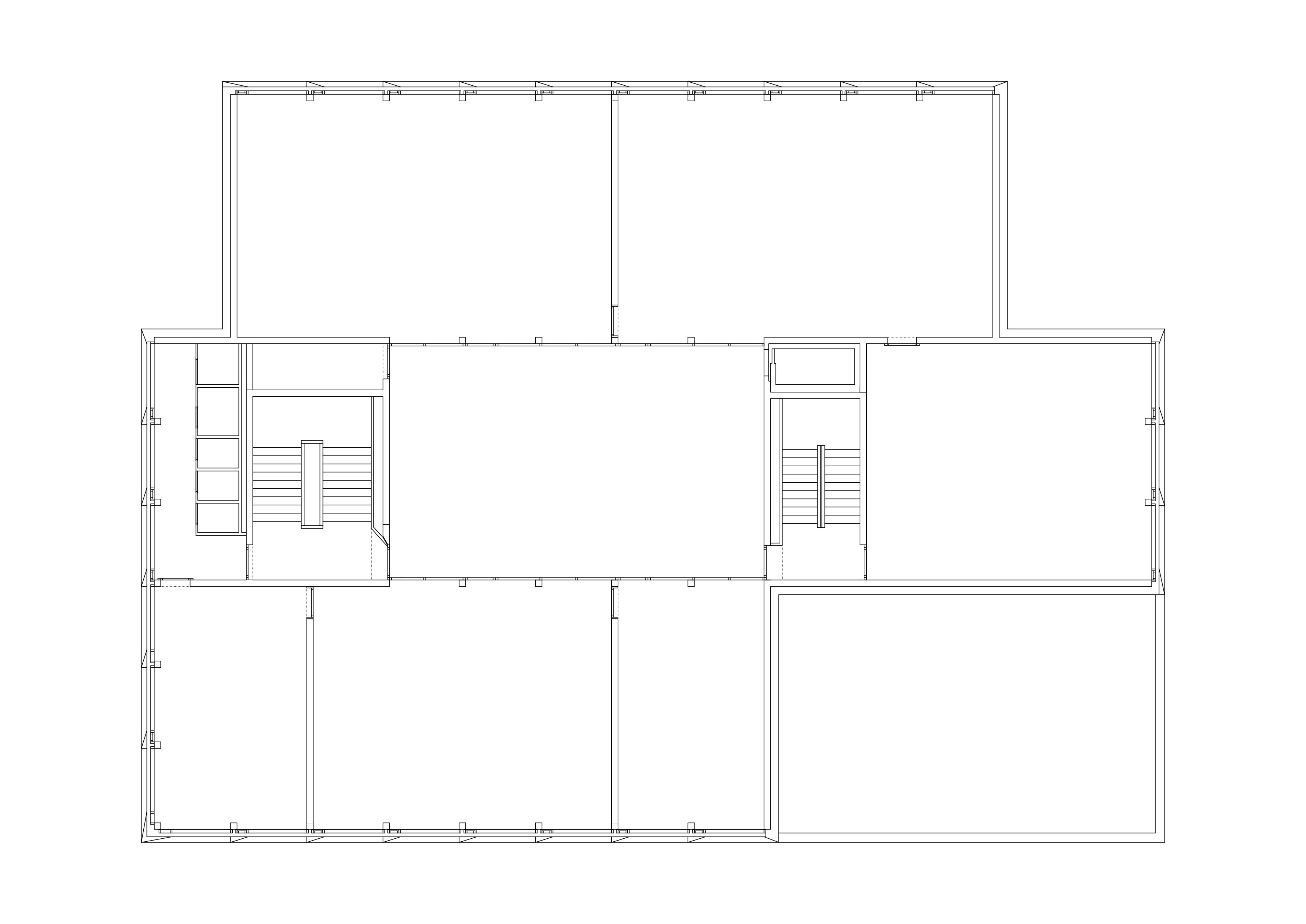
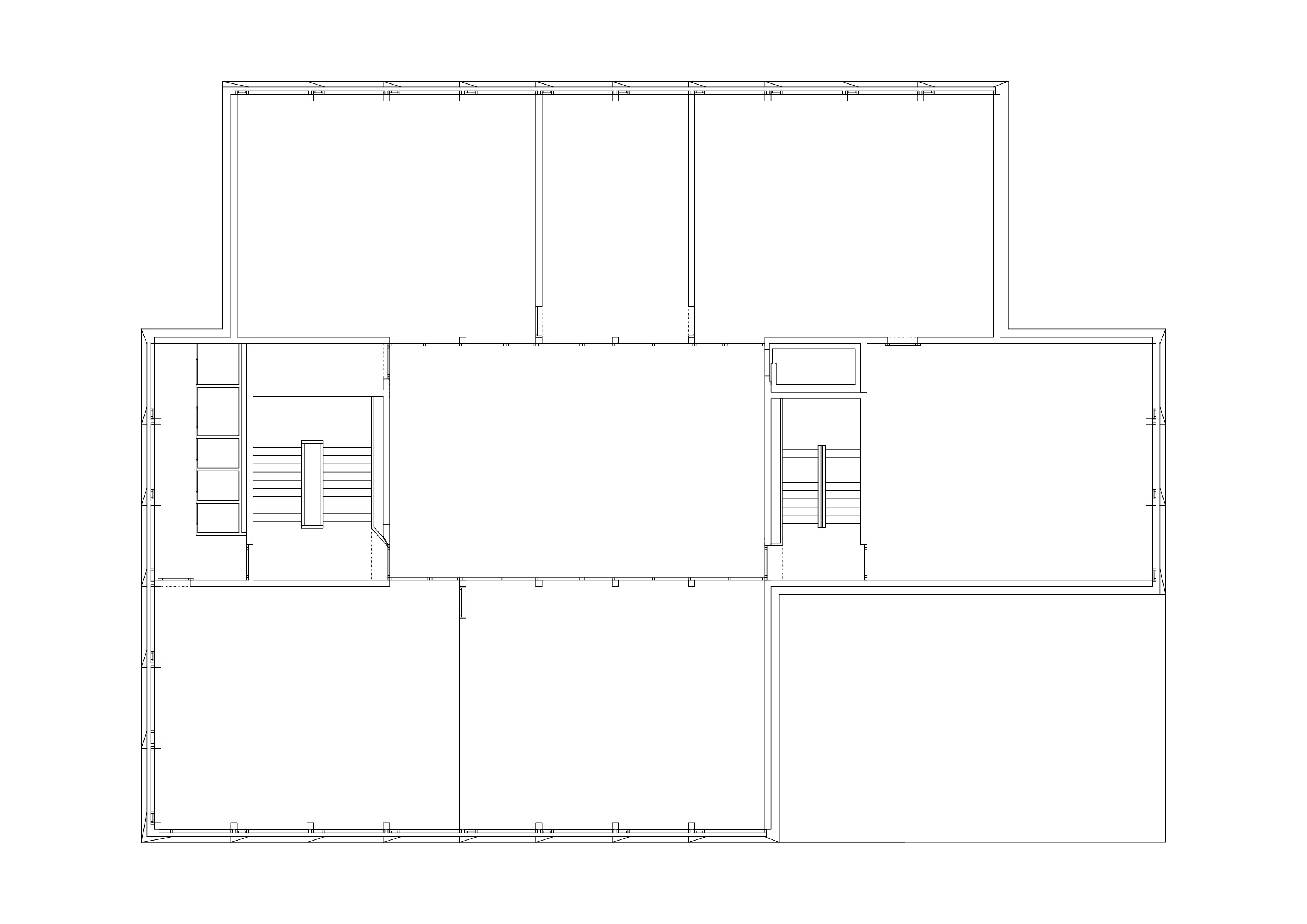
Le nouveau bâtiment de classes de l’école professionnelle de Viège offre une transformation du contexte et permet de connecter les écoles du quartier, de créer un campus de formation et d’intégrer les nouveaux ateliers et les salles de gymnastique. Associée au nouveau bâtiment, la place d’école devient l’espace de référence du campus. La volumétrie du bâtiment s’inspire des volumétries des écoles alentours, une compacité découpée permettant la progression d’un volume de deux niveaux à un volume de quatre niveaux.
La typologie développée reprend celle du bâtiment des années soixante avec son hall central de distribution mais la radicalise en un plan à trois strates, la couche centrale servant d’espace de distribution et d’espace de travail en groupe. La transparence des cloisons légères laisse permet l’éclairage naturel de cet espace. Cette typologie interfère immanquablement le concept pédagogique. La matérialité intérieure se limite au béton brut du porteur, à l’aluminium associé au verre coloré des cloisons légères, décliné en différents tons de vert. La matérialité extérieure confirme le jeu volumétrique, carrossage en inox poli miroir des vitrages et bardage d’aluminium brut pour les parties retranchées au quadrilatère de base. La défragmentation de l’image reflétée du fait de la forme en biseau du capot compose un nouveau contexte.
- ClientEtat du Valais
- MandatConcours de projets
- StatutConstruit
- Dates2004 concours / 2007-2009 réalisation
- Programme12 classes / 10 salles préparation / Réfectoire / Cuisine
- CollaborateurJean-Pierre Williner
- Ingénieur gcAndenmatten Lauber & Partner AG
- Ingénieur cvsGd Climat SA et Anton Imhof SA
- Ingénieur eETG Salzmann AG
- PhotosHannes Henz
- Surface4020 m2
- Volume14300 m3
- CoûtCHF 11'140'000.–
- Distinction Arc award 2013, best architects 12 nominé / Prix d’architecture et ingéniérie parasismique 2010
- typeproject