
C2FA —
Chalet Individuel Arbaz
2012 - 2013




























Dans le village d’Arbaz, ce chalet légèrement isolé de ses semblables abrite une famille vivant à l’année. Ce chalet est situé dans une zone de mayens, où le règlement est particulièrement restrictif. Pour ce projet, le thème des "Falsche Chalet" a été adopté. Sa morphologie traduit une expression plus ou moins traditionnelle de chalet, tout en dissimulant à l’intérieur une interprétation contemporaine brutaliste avec un emploi marqué du béton.
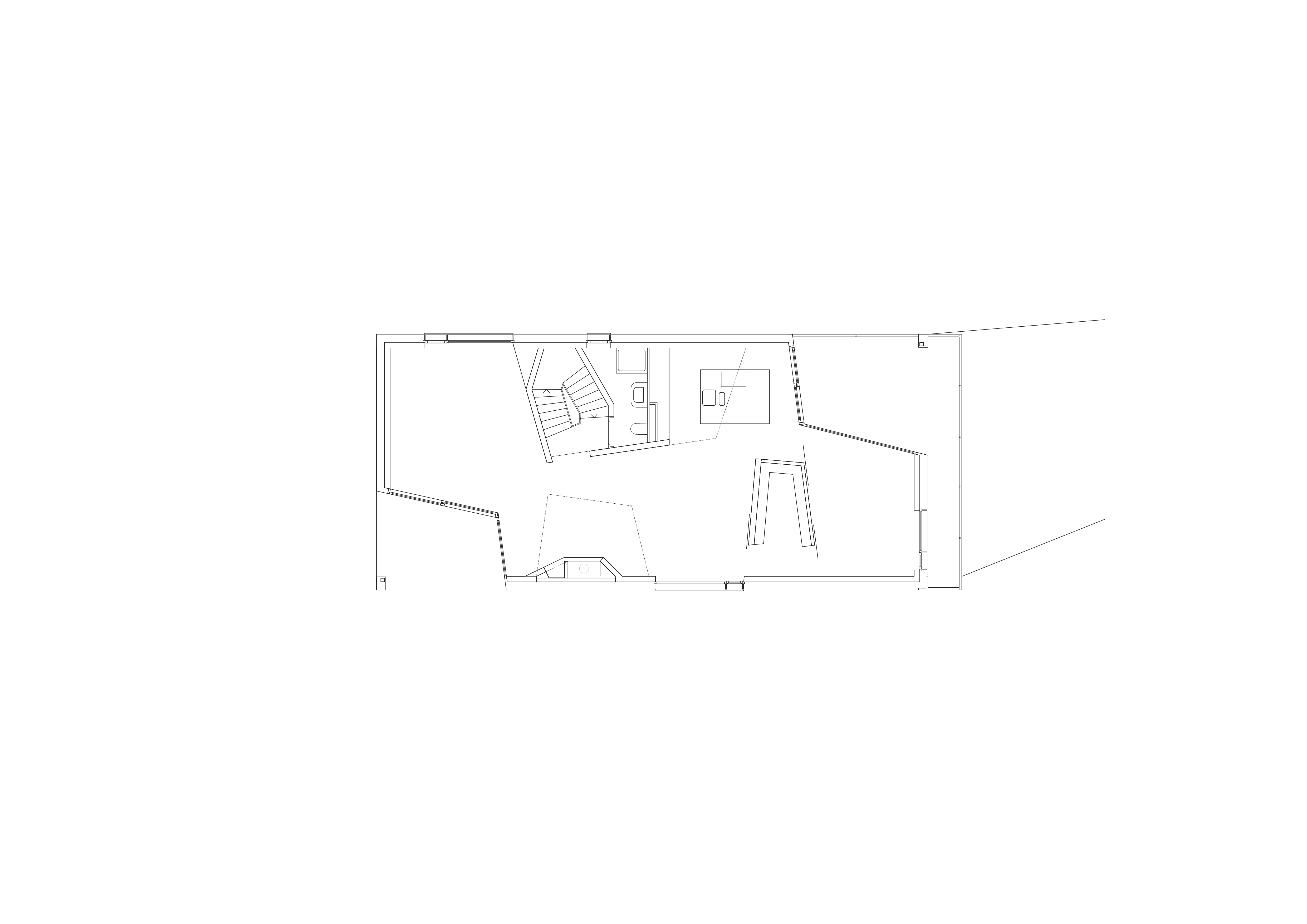
Dominant la plaine du Rhône, sa morphologie se présente sous la forme d'un rectangle parfait, posé en longueur dans le sens de la pente. Le bâtiment se compose de trois niveaux hors sol, dont un niveau semi-enterré. En guise de socle, le rez-de-chaussée inférieur s’ouvre face à la pente, offrant une entrée et un parking couvert. Ce niveau fonctionnel, dédié aux dépôts et à la technique, mène à un escalier asymétrique qui dessert les étages.
À l’arrivée de l’escalier du rez-de-chaussée supérieur, une cheminée monumentale se dresse dans un vaste espace ouvert rythmé par deux loggias situées aux extrémités opposées. Orienté sur les espaces de vie, cet étage est doté de deux volumes qui structurent l’intérieur. Le premier volume englobe les escaliers et les toilettes, séparant la cuisine du salon et créant, en baïonnette, un coin salle à manger. Le second volume, quant à lui, est constitué d'un mobilier en U intégrant une bibliothèque, délimitant ainsi le bureau.
Des doubles hauteurs caractérisent la cuisine et l’espace cheminée, tout en organisant, à l’étage supérieur, les circulations entre la chambre parentale au sud et les trois chambres au nord. En contraste avec la géométrie simple du chalet, le projet s’exprime de l’intérieur par les angles obliques des murs et cloisons ainsi que par les découpes asymétriques des hauteurs.
Le bardage en mélèze de la façade joue avec les dimensions des larges baies vitrées, recadrant les ouvertures tout en laissant passer la lumière. À l'intérieur, les murs en béton restent apparents. Une sélection de couleurs vives interagit dans ces espaces minéraux de par leur rayonnement et leur jeu de transparence et de lumière.
- ClientPrivé
- MandatDirect
- StatutConstruit
- Dates2012 projet / 2013 réalisation
- ProgrammeEspace de vie / Espace de nuit
- CollaborateurNicolas Ulrich
- Ingénieur gcKurmann & Cretton SA
- Ingénieur cvsTecnoservie Engineering SA
- Ingénieur eLami SA
- PhotosBW_Diogo Marques
- Surface355 m2
- Volume1125 m3
- typeproject