
CGS_E —
Ecole de commerce et culture générale Sierre
2011 - 2019













































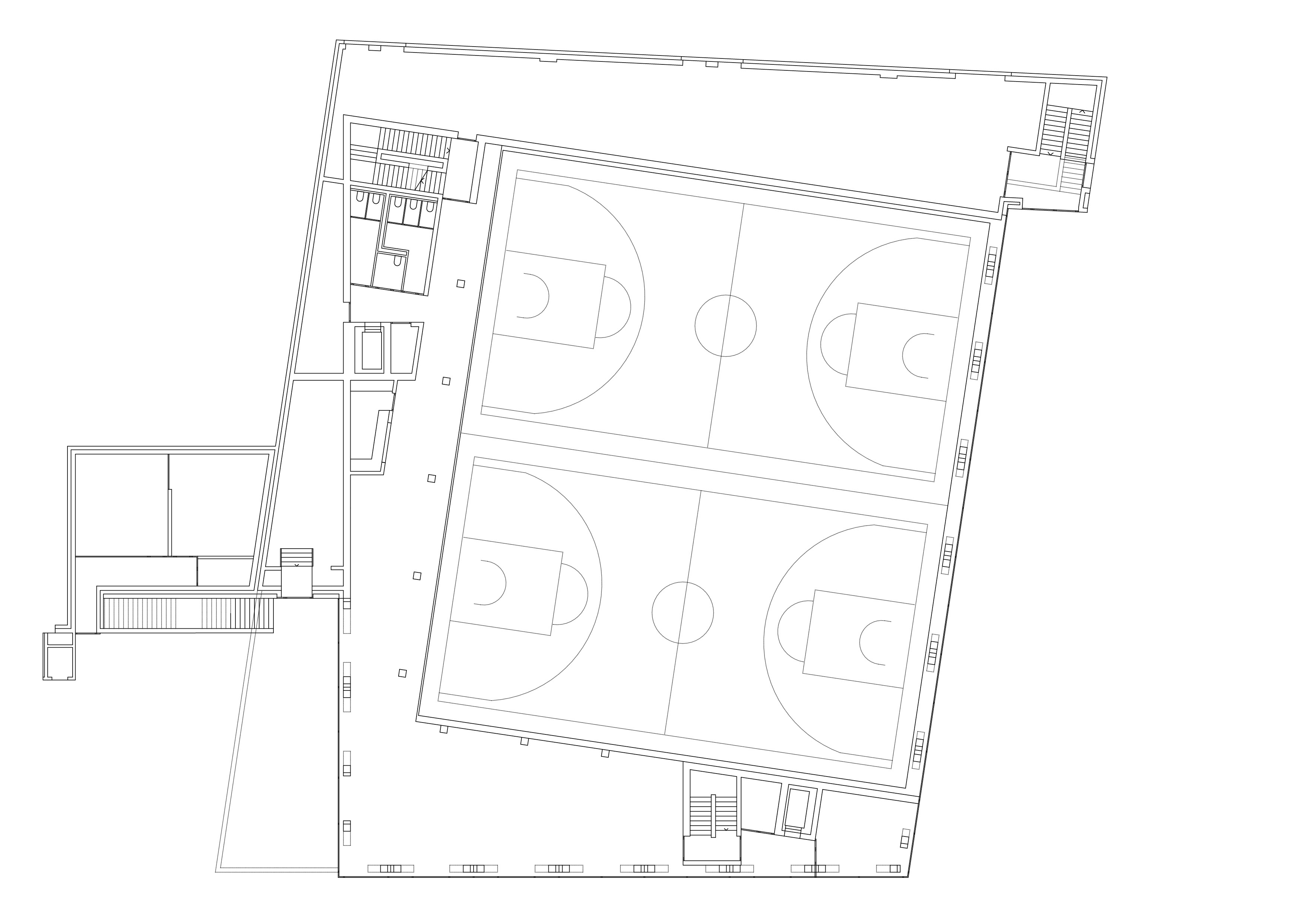
La nouvelle école de commerce et de culture générale est implantée au sud des voies CFF, marquant avec l’infrastructure de mobilité, le développement de la ville de Sierre, au delà des voies. La plaine Bellevue se voit ainsi dotée d’un second lieu d’enseignement après la Haute Ecole de travail social. Le site est caractérisé par deux niveaux de référence : le premier donnant au nord sur la gare CFF et à l’ouest sur la route de la Monderêche et le deuxième donnant au sud et à l’est sur la plaine Bellevue. La position de l’école à cheval sur la rupture de pente permet une séparation claire des programmes. L’école bénéficie de deux entrées, la première est située au niveau de la gare routière et la deuxième au niveau de la passerelle reliant le nord de la ville et la gare CFF. L’entrée de la salle de gymnastique est située au niveau inférieur.
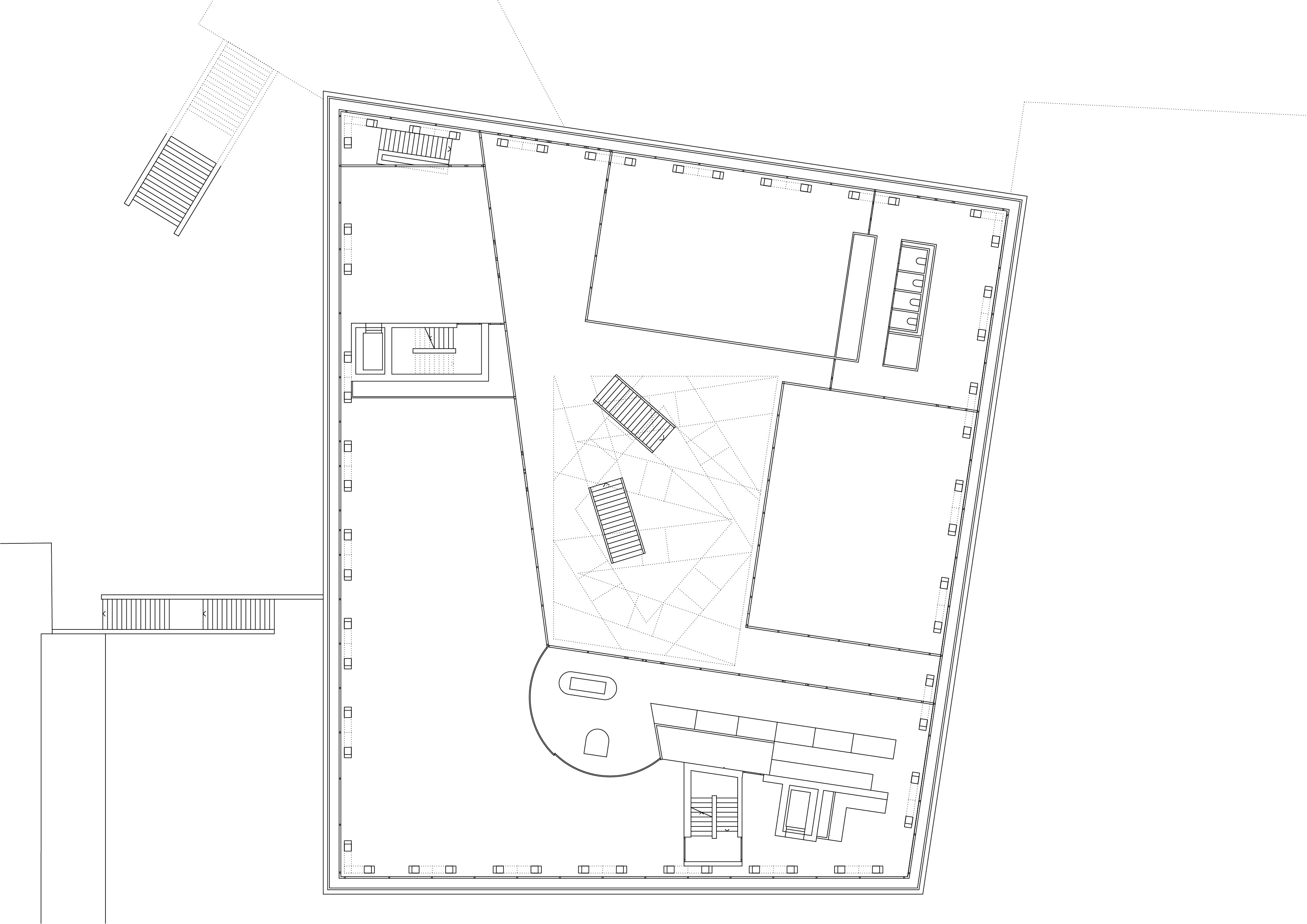
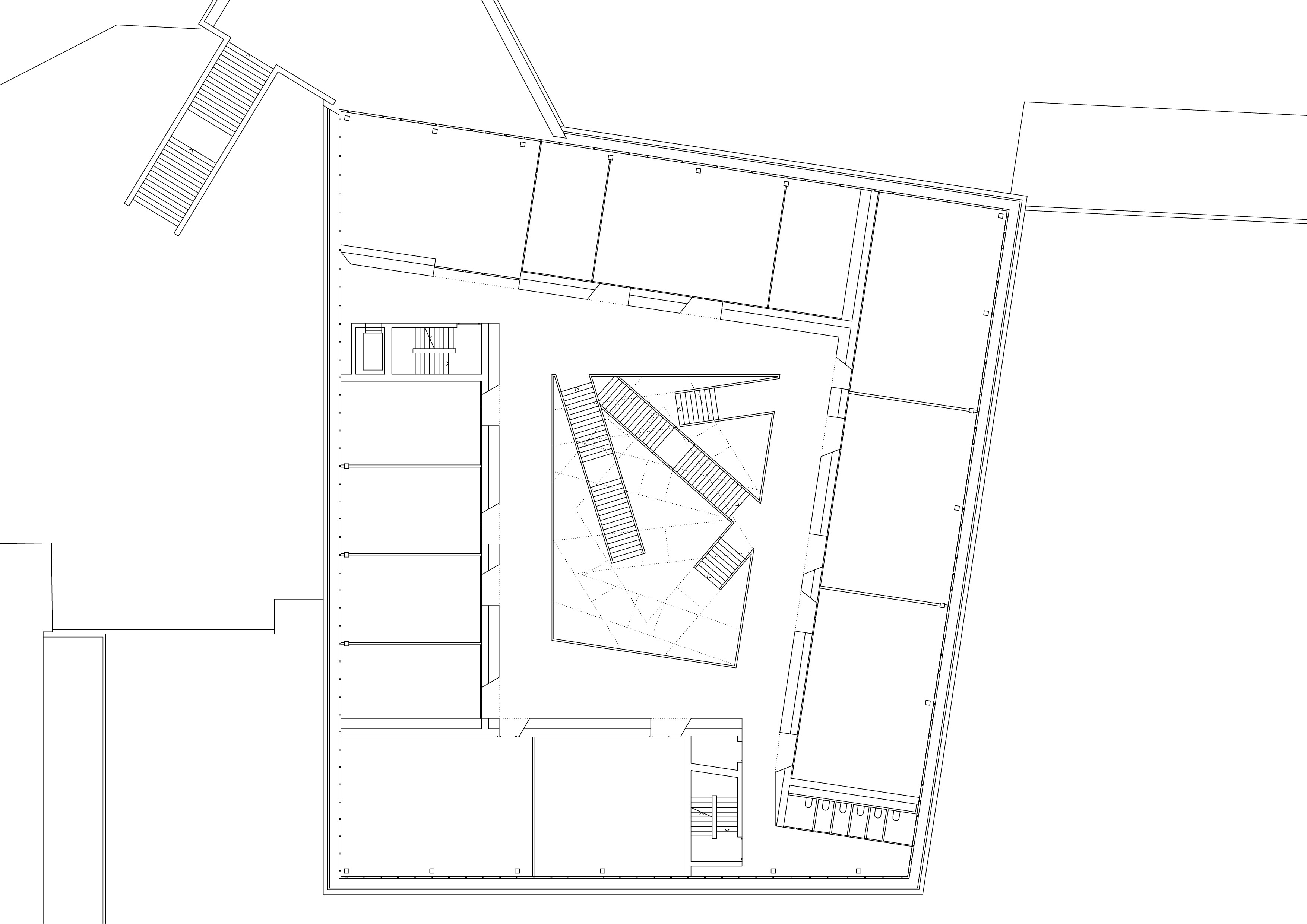
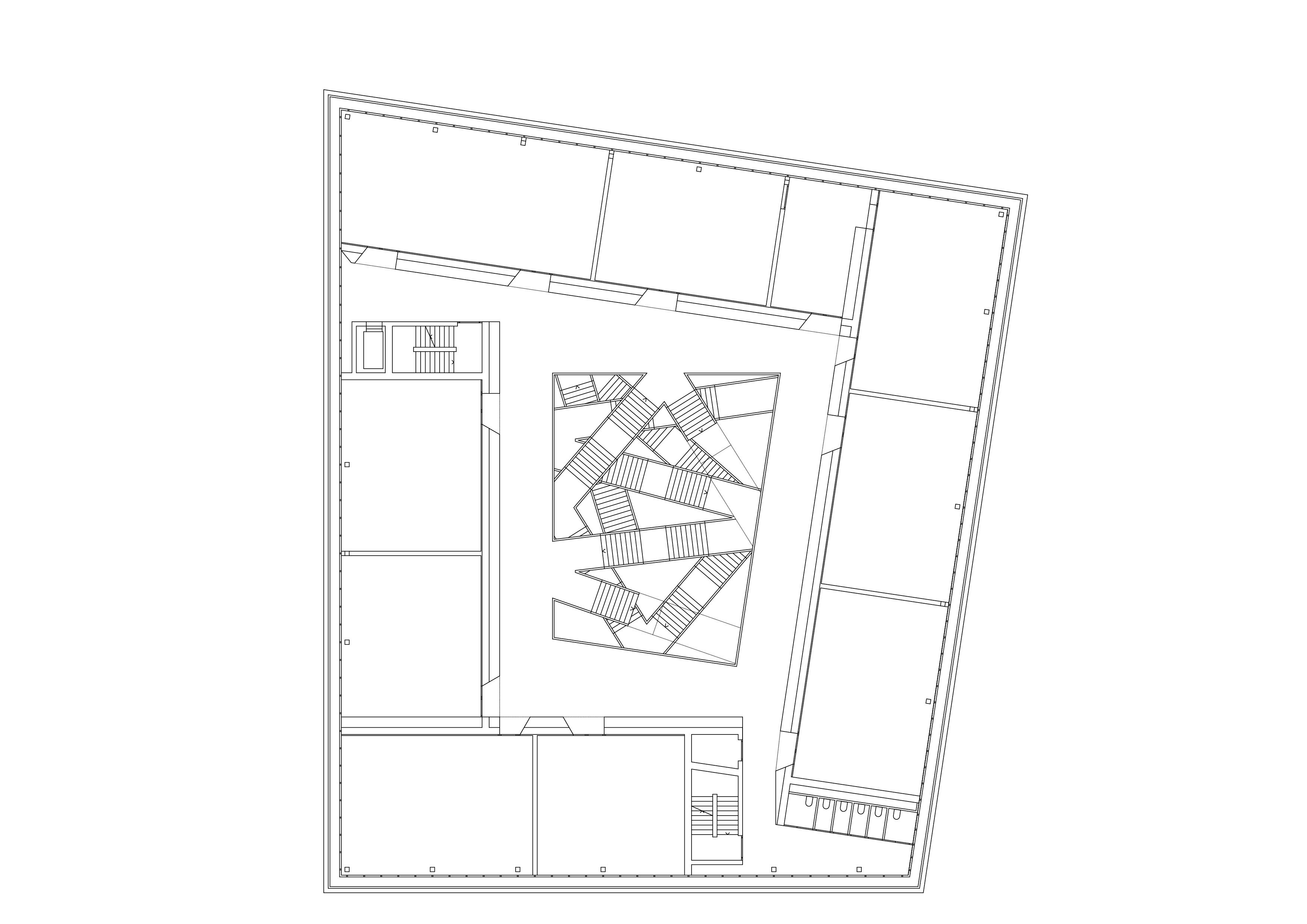
La conception de l’école offre une typologie en adéquation aux exigences et spécificités pour le niveau de formation qu’elle abrite. Une ceinture de salles de classe est desservie par une coursive en balcon donnant sur le grand espace central baigné de lumière. Cet espace central, occupé par le jeu des volées d’escalier, devient l’espace de référence et d’identité de l’école. Les salles de classes disposées en périphérie de l’espace central jouissent d’orientations et de lumières différentiées.
Le rez de chaussée reçoit le programme public, soit le restaurant et les deux auditoires mutualisés avec la HES_SO qui occupe également le niveau supérieur. La structure béton résout la problématique de la superposition de programmes scolaires sur la salle de sport double soit le report des charges des quatre grands voiles sur la périphérie. Il en découle des structures en V assurant la stabilité sismique. Les façades en verre habillées de garde-corps en bardage plissé inox poli miroir révèlent la structure. La matérialisation intérieure est sobre : béton apparent, verre transparent ou teinté et éléments d’habillage aluminium.
- ClientClient Etat du Valais
- MandatMandat Concours de projets
- StatutConstruit
- Dates2011 concours / 2016-2019 réalisation
- Programme40 classes / 2 auditoires / Bureaux / Restaurant / Salle sport double / Services
- CollaborateurJean-Pierre Williner / Diogo Marques
- Ingénieur gcKurmann Cretton SA
- Ingénieur cvsEnerconseils Sion SA / Bonvin Technique Concept Sàrl
- Ingénieur eLami Sàrl
- PhotosRoland Halbe / Nicolas Sedlatchek
- Surface11220 m2
- Volume516000 m3
- CoûtCHF 45'000'000.–
- typeproject