
CIM —
Chalet Gryon
2011 - 2012



































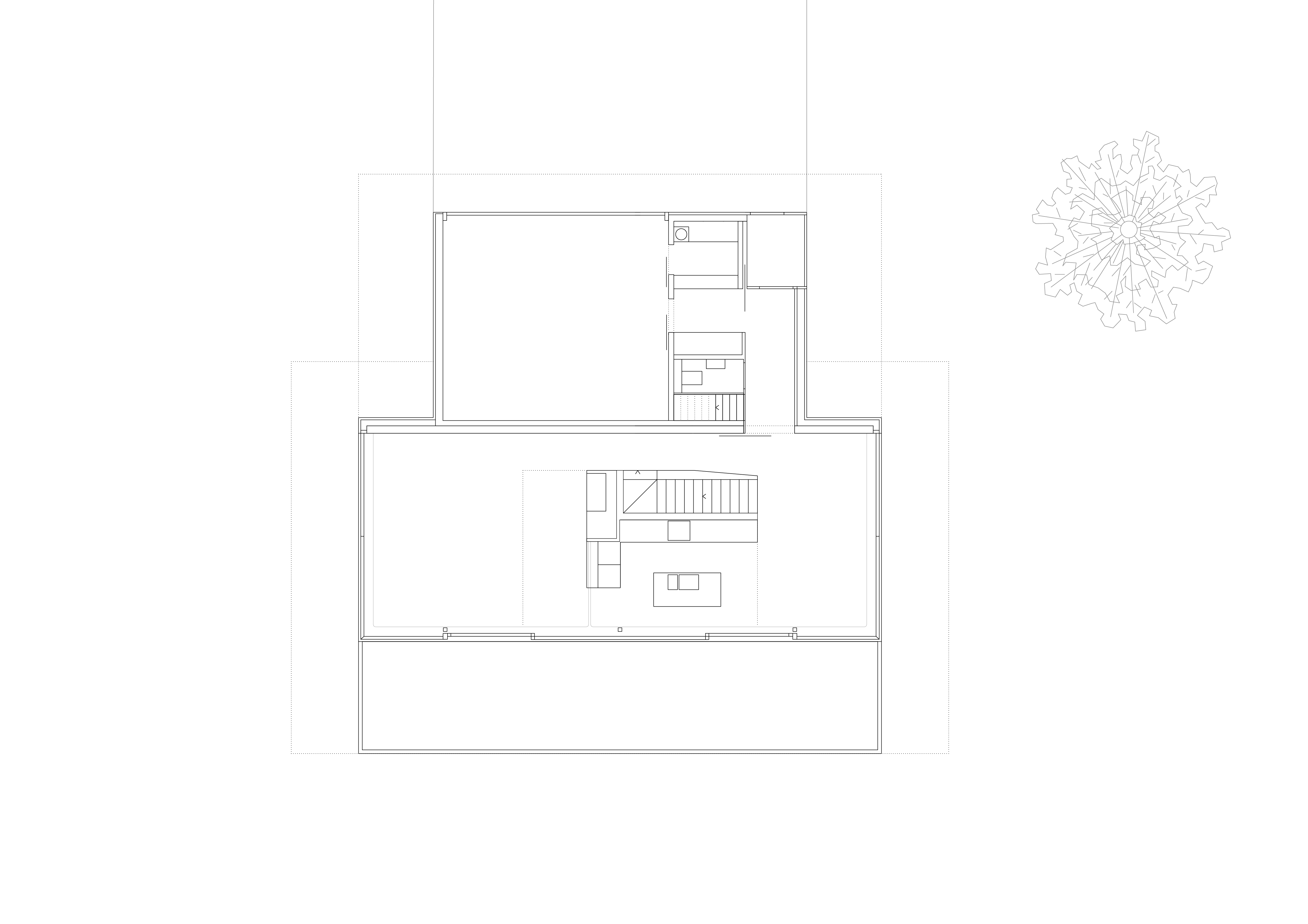
Tel un nid d’aigle, le chalet s’accroche sur une parcelle pentue orientée plein sud en périphérie d’un petit village de montagne des alpes vaudoises. Les fonctions jour sont organisées dans un grand espace au rez tandis que les parties nuits se trouvent en dessous, 1 étage dédié au parents et 1 étage aux enfants. Le garage et les locaux techniques sont répartis à l’arrière du chalet tel un sac à dos de montagnard.
De larges ouvertures sur les façades sud, est et ouest offrent un panorama à 270° sur les alpes valaisannes et vaudoises depuis toutes les pièces du chalet. La grande terrasse au rez prolonge le séjour et la salle à manger. La matérialité intérieure, brute comme la montagne et accueillante comme un nid se traduit par une structure en béton teintée dans la masse, protégé par une grande charpente de toiture aux avant-toits élancés. Des revêtements intérieurs en inox poli miroir prolongent l’effet de transition entre l’intérieur et l’extérieur. Tous les éléments porteurs sont laissés apparents, les sols et plafonds sont revêtus de lames en chêne, les cadres de fenêtres sont également en chêne. L’extérieur est entièrement traité en noir, dans une volontée d’intégration dans le paysage et de sobriété.
- ClientPrivé
- MandatDirect
- StatutConstruit
- Dates2011 projet / 2012 réalisation
- ProgrammeEspace jour / Espace nuit / 4 chambres
- CollaborateurArnaud Zehnder
- Ingénieur gcKalin et Cuerel SA
- Ingénieur cvsChammartin-Spicher SA
- Ingénieur eLami SA
- PhotosFrancesca Giovanelli
- Surface416 m2
- Volume1337 m3
- typeproject