
CLY_BER —
Immeuble Plant Robert Cully
2017 - 2023



















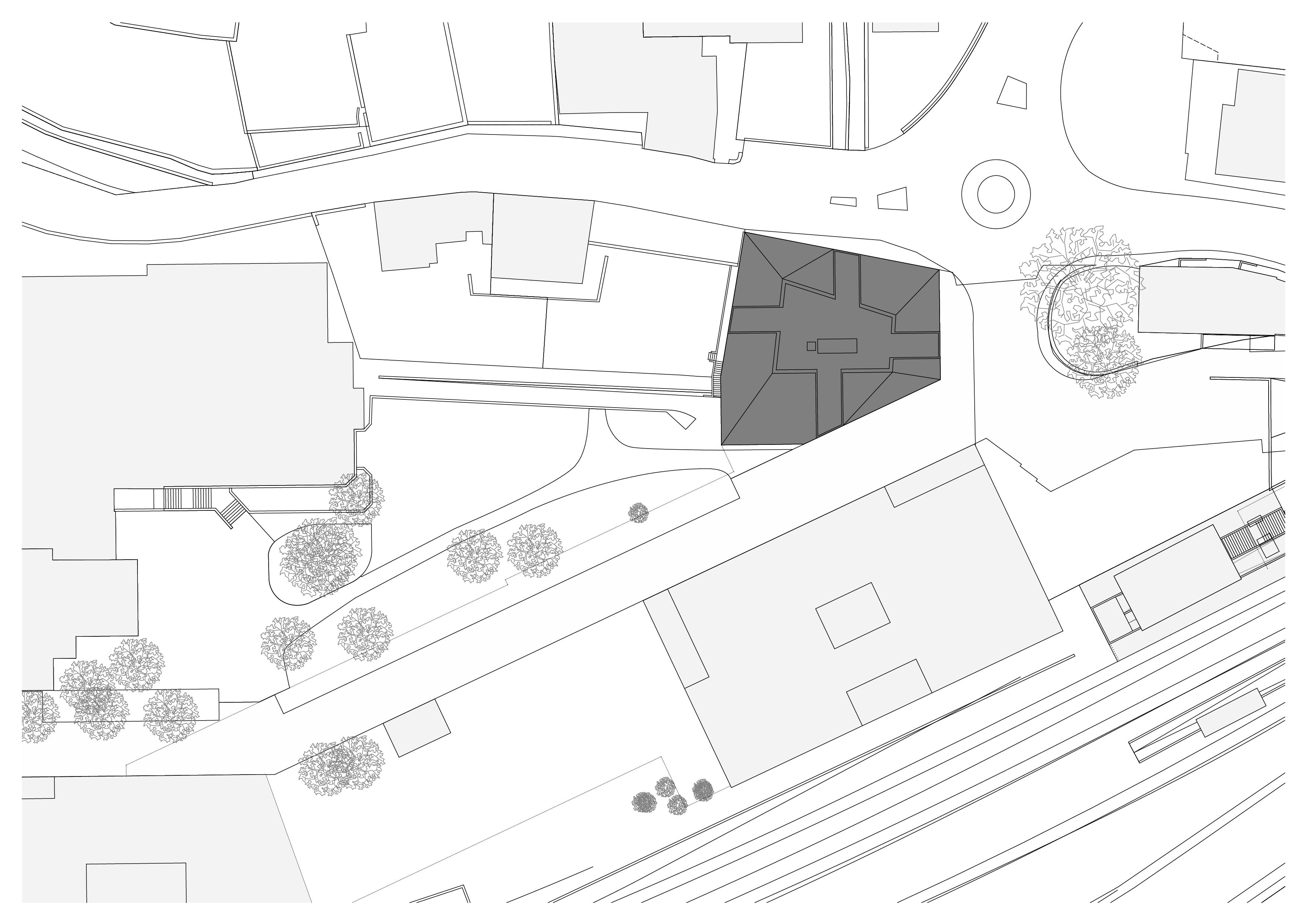
Le bâtiment de logements et activités se place en charnière entre le village haut et l'espace ferroviaire de Cully, donnant à la fois sur le cœur urbain et sur l'accès à la place de la Gare. Occupant l'intégralité d'une parcelle réduite, l'édifice présente une grande efficacité dans son organisation (recevant 16 logements aux typologies variées, une pharmacie, un point d'informations touristiques, un bancomat et des sanitaires publics) ainsi qu'une architecture typique du Lavaux. Réinterprétant les éléments vernaculaires comme les larges lucarnes, la typologie en plot bas, ou les tons chauds de la façade, le projet est cependant résolument contemporain par sa compacité, ses vitrages généreux et la minéralité du béton ocre rouge teinté dans la masse et sablé — à l'exception des cadres de fenêtres soulignés par une finition propre de décoffrage.
Intégrant aussi la rampe d'accès au parking souterrain mutualisé avec deux autres immeubles, l'édifice se distingue par un usage de l'espace disponible à la fois rationnel et généreux. Les activités prennent logiquement place au rez-de-chaussée, profitant de la grande hauteur sous plafond, et les logements, uniquement locatifs et destinés aux Culliérans, se déploient sur les trois étages supérieurs. Chaque appartement possède un espace extérieur : loggias dans les étages et terrasses en attique, logées au cœur de la charpente bois. A l'intérieur, le plan gravite autour d'une cage d'escalier centrale éclairée zénithalement et ceinte d'une large circulation desservant l'ensemble des habitations. Le béton brut et l'acier galvanisé des parties communes sont adouci par des portes palières aux vitrages colorés et des intérieurs aux matières chaleureuses, linoléum au sol et profils de fenêtres bois/métal. Le bâtiment marque ainsi la tête d’une nouvelle séquence bâtie à Cully tout en s’inscrivant harmonieusement dans son contexte.
- ClientCommune Bourg-en-Lavaux
- MandatConcours
- StatutConstruit
- Dates2014 concours / 2019 projet / 2021-2023 réalisation
- Programme16 logements / Commerces
- CollaborateurNicolas Ulrich / Sandrine Rubin
- Ingénieur gcKurmann & Cretton SA
- Ingénieur cvsWeinmann-energies SA
- Ingénieur eBetelec SA
- PhotosDi Giambattista
- Surface3025 m2
- Volume10000 m3
- CoûtCHF 7'100'000.–
- typeproject