
ECE —
Collège Croset-Parc Ecublens
2015 - 2019




































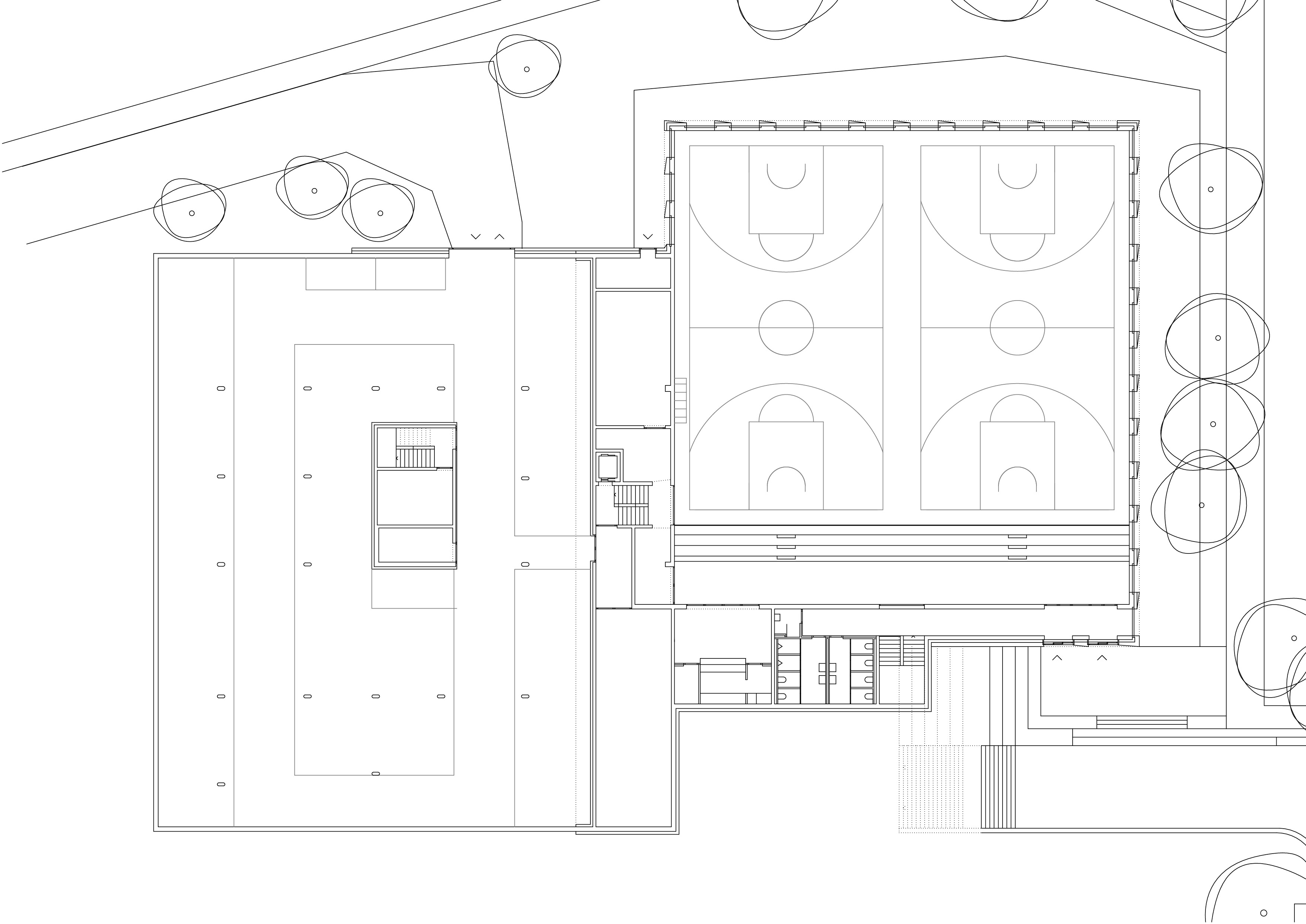
Le nouveau collège Croset-Parc vient compléter la structure scolaire existante dans un contexte en pleine mutation, futur quartier de logements remplaçant un site industriel désaffecté. A cette densification, le projet du collège répond par deux volumes compacts déboîtés en plan comme en coupe. Par le choix d’une figure géométrique simple, le rectangle, le projet affirme son appartenance à la structure scolaire voisine et à la morphologie générale du quartier composée de parallélépipèdes solitaires.
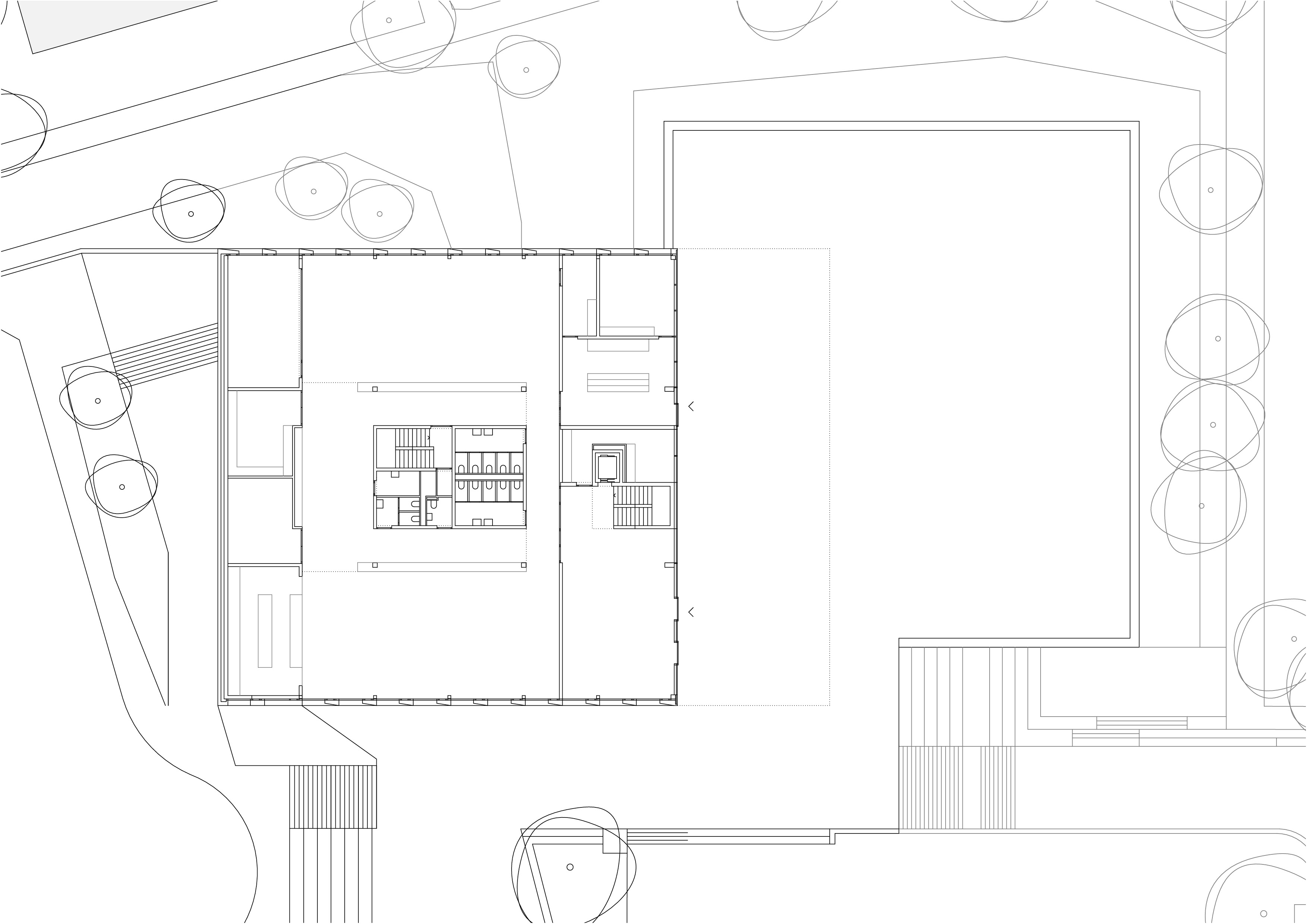
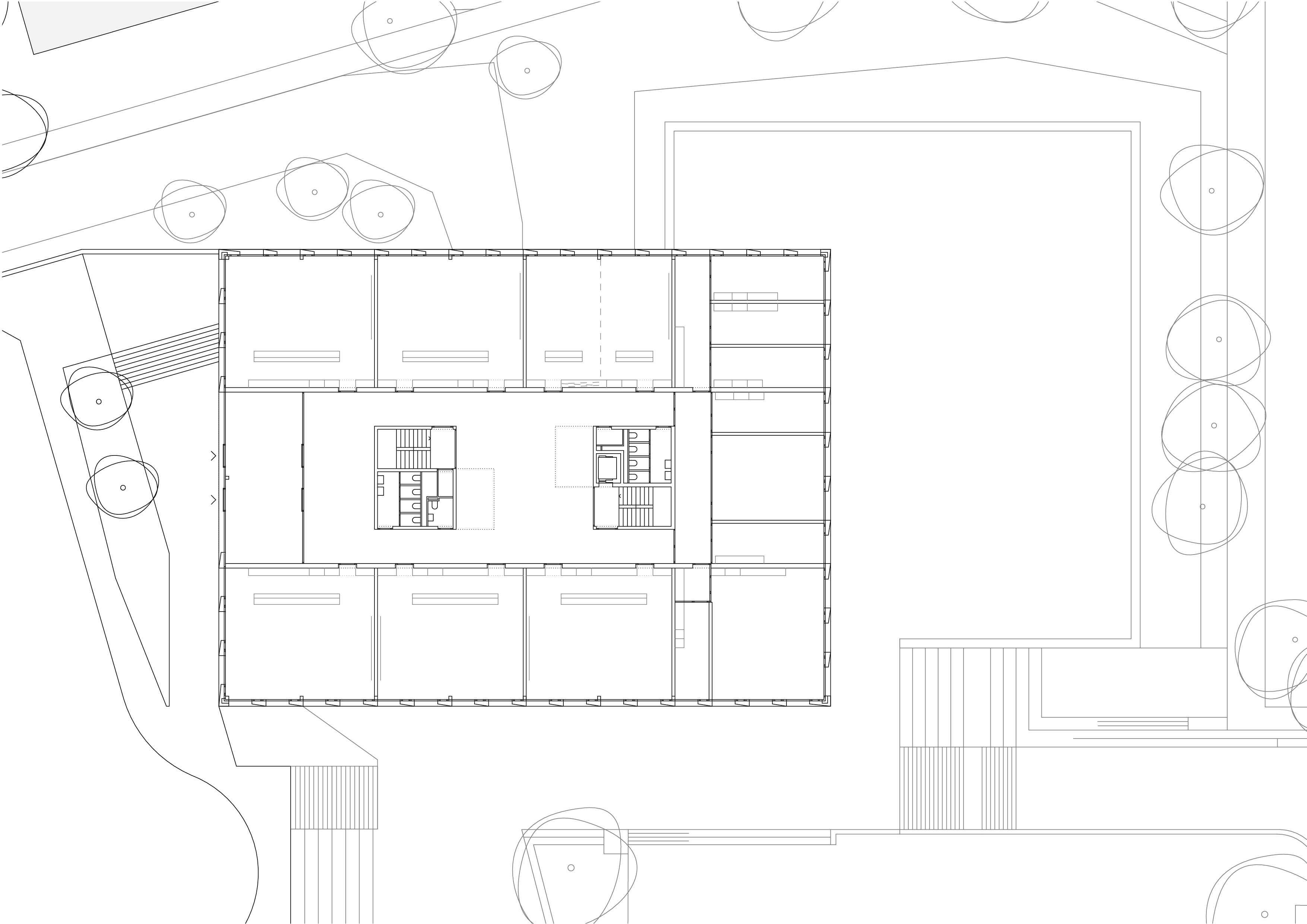
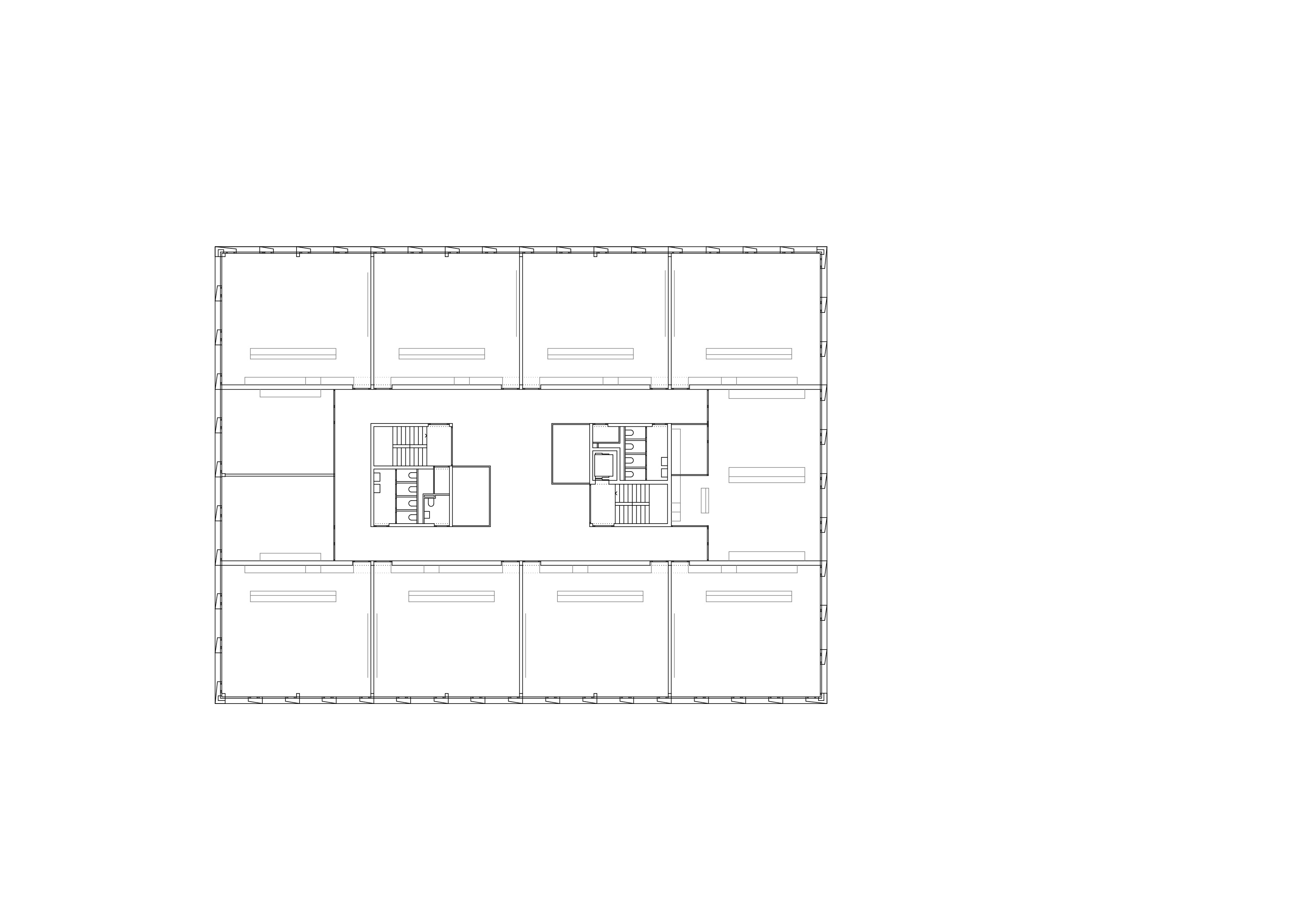
Le décalage des deux volumes en plan permet de dégager des surfaces généreuses de préau. La morphologie du nouveau collège affirme son contenu programmatique. Le volume principal de quatre niveaux contenant le programme scolaire et parascolaire occupe la frange nord du périmètre d’implantation. Le volume accolé et décalé en aval contenant la salle de sport double est enfoncé dans le terrain afin que sa toiture devienne le préau d’école. La rencontre des deux volumes est articulée par le préau couvert, logé sous le porte-à-faux. L’organisation intérieure tire parti de la pente pour offrir plusieurs entrées. L’école présente deux niveaux en contact avec le sol. Le rez inférieur s’ouvre sur le préau. Il reçoit l’accueil parascolaire. Le rez supérieur comporte une entrée sur rue. Il comporte les espaces PPLS et une aile de classes. La salle de sport a son entrée face au terrain de sport. Deux cages d’escaliers relient les différents programmes superposés.
La typologie de l’école présente trois travées : les salles de classe s’ouvrent en façades est et ouest alors que le hall central jouit d’une transparence nord sud, rendue possible par l’implantation des salles spéciales : maîtres, acm/act et dégagement. Un vide central éclairé par une lumière zénithale relie spatialement les trois niveaux de l’école. La structure est en béton. Les deux voiles définissant les travées longitudinales permettent la descente des charges statiques sans appui sur la dalle de la salle de sport, créant ainsi un espace du préau couvert sans entrave. La façade est composée de modules préfabriqués, intégrant le vitrage fixe et sa partie ouvrante, le store et le capot de finition aluminium.
- ClientCommune Ecublens
- MandatConcours de projets
- StatutConstruit
- Dates2015 concours / 2018-2019 réalisation
- Programme22 classes / Salles spéciales / Ppls / Apems / Salle sport double
- CollaborateurFrédéric Osterrieth
- Direction travauxPragma SA
- Ingénieur gcKurmann Cretton SA
- Ingénieur cvsChammartin Spicher SA et CCTB SA
- Ingénieur eLami SA
- PhotosRoland Halbe / Nicolas Sedlatchek
- Surface7800 m2
- Volume32700 m3
- CoûtCHF 33'100'000.—
- typeproject