
F24 —
Immeuble bureaux logements Monthey
2016 - 2018











































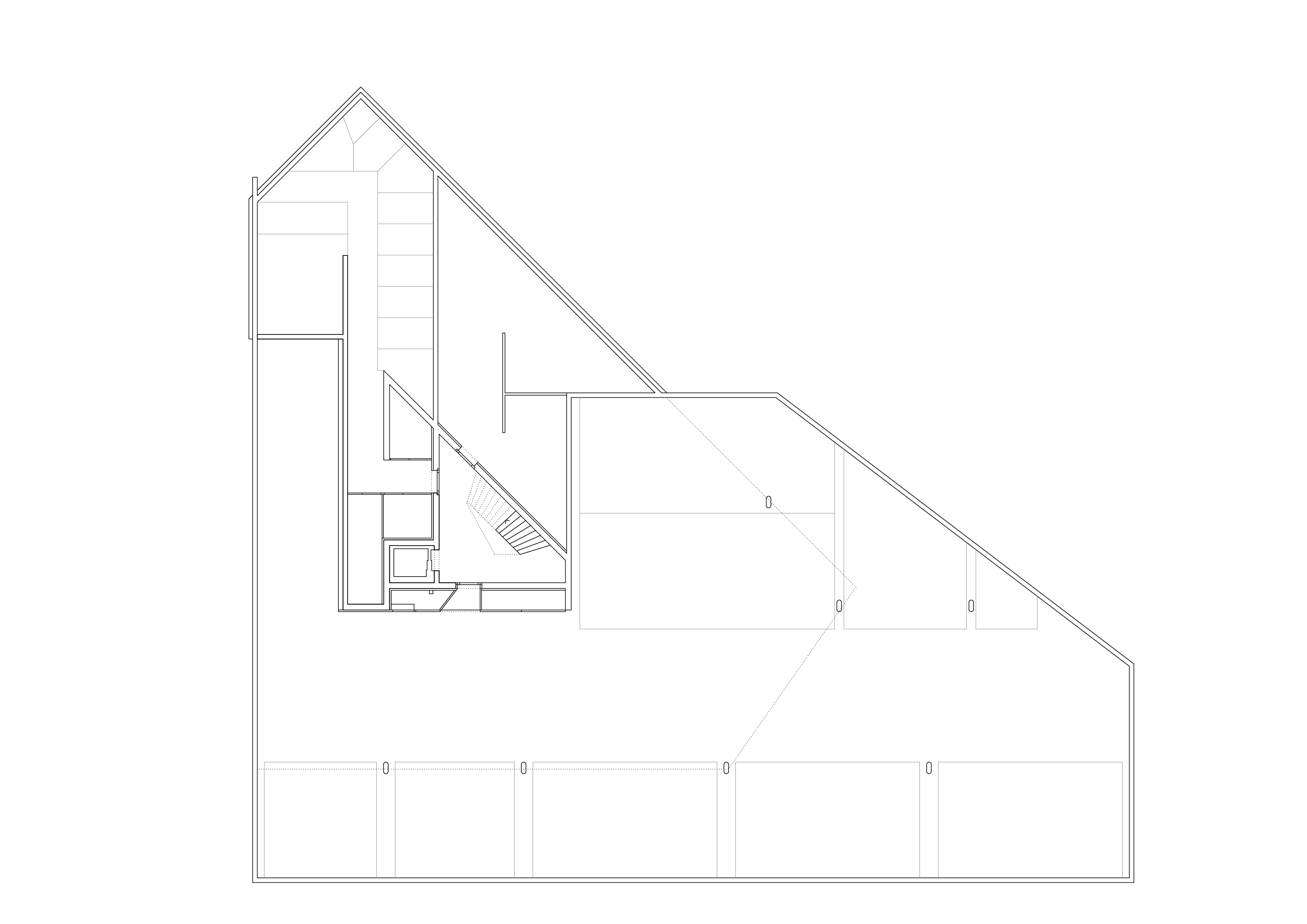
L’immeuble se situe à l’entrée de la ville en bord d’avenue, sur une parcelle anciennement occupée par un hangar des Transports Publics du Chablais. La parcelle est scindée par le tracé de la voie ferrée qui à cet endroit se déporte pour se mettre dans l’axe de la gare en ville. Il en résulte un terrain de forme triangulaire que le projet exploite en une volumétrie extrudée à partir de cette particularité. L’immeuble est ainsi façonné en une morphologie à 5 faces, stable et dynamique, selon ses façades.
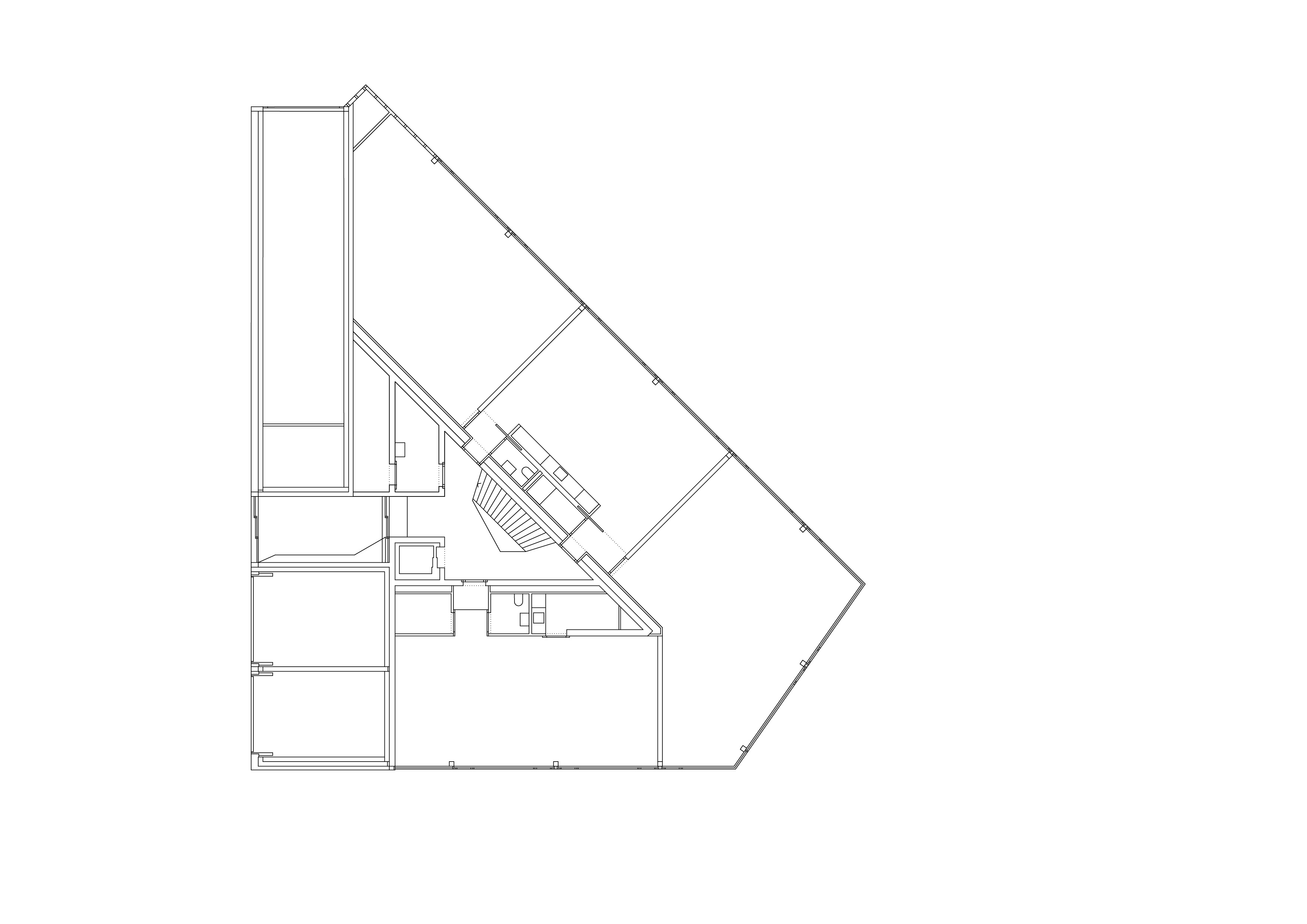
Le noyau central de circulation réduit la forme du plan en un triangle, distribuant une couronne d’espaces de profondeur régulière. Le triangle est encore réduit à la taille du vide qui accompagne l’escalier à volée droite. L’immeuble comprend six niveaux. Le rez reçoit un bureau, une salle commune et des locaux d’archives. Les deux premiers étages sont occupés chacun par un bureau. L’espace d’activités reste unitaire, modulé par quelques cloisons en verre, pour former les salles de conférences ou les bureaux individuelles.
Les niveaux supérieurs offrent cinq appartements par étage. Les grands appartements occupent les angles, les espaces jour reprenant les variations géométriques alors que les chambres restent orthogonales. La loggia d’angle articule l’espace jour en coin repas et coin séjour. La structure en béton armé reste apparente, refends sismiques du noyau central, parapets, piliers et dalles. L’enveloppe comme les éléments de fermeture intérieure sont en métal. La façade est un plissé d’inox poli miroir, pour un jeu de reflets racontant le contexte, changeant au gré des heures et des saisons. Les vitrages et les portes sont en menuiserie aluminium. Le noyau est revêtu d’une tôle perforée dans les bureaux. La finition des logements est déclinée en trois gammes de teintes, linoleum et carrelage en vert, bleu ou aubergine, agencement des cuisines en rose, ciel et vanille.
- ClientBwim SA + Prrim SA
- MandatMandat Privé
- StatutConstruit
- Dates2016 projet / 2017-2018 réalisation
- ProgrammeBureaux / 15 appartements
- CollaborateurIvana Kazija / Cindy Praz
- Ingénieur gcKurmann Cretton SA
- Ingénieur cvsTecnoservice Engineering SA
- Ingénieur eLami SA
- PhotosRoland Halbe / Hannes Henz
- Surface3910 m2
- Volume12090 m3
- CoûtCHF 9'500'000.–
- typeproject