
F27 —
Ficelletaz Morgins
2020 - 2021
























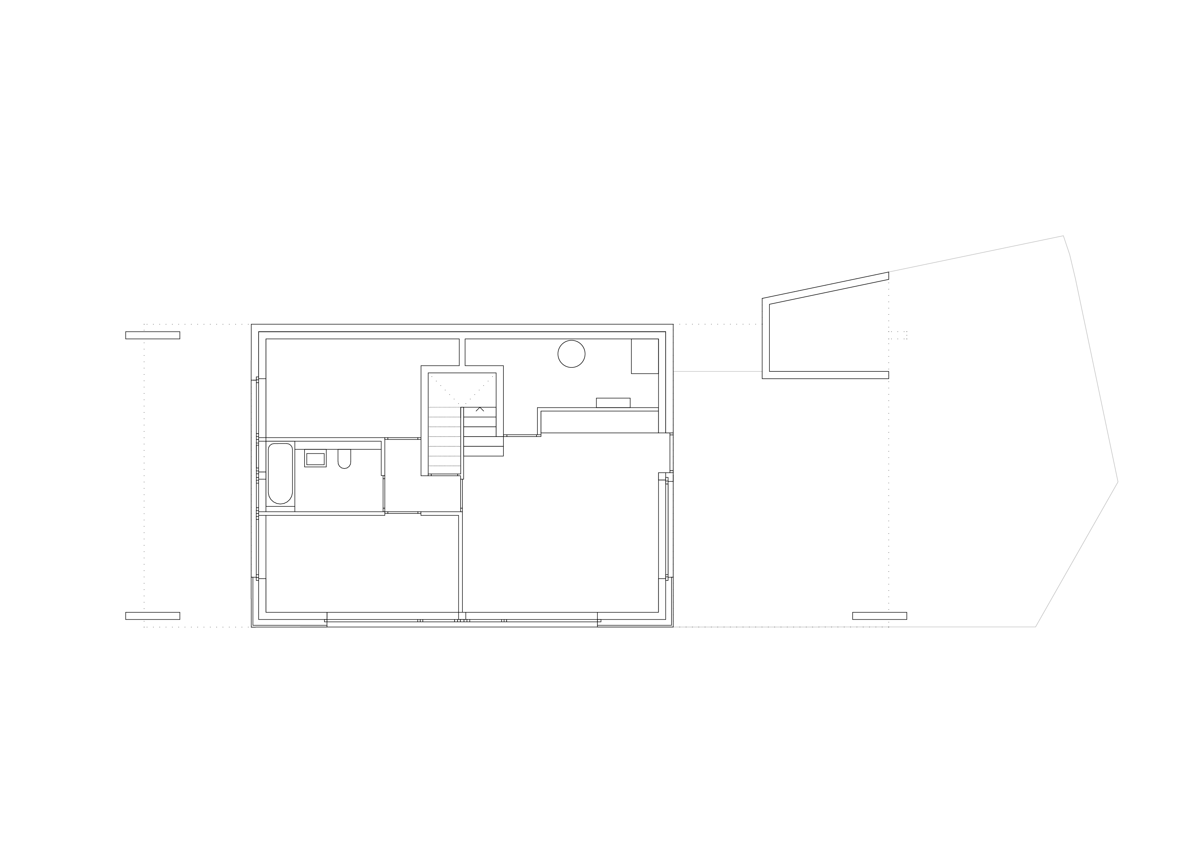
Un pied-à-terre dans la neige. Morgins, un petit village de montagne au charme certain, niché dans le creux des Alpes valaisannes. Dominant le village, le chalet s’implante en bordure du centre, sur un terrain vierge de construction. Écrin isolé pour une famille y vivant à l’année, le volume s’intègre sur un site en légère pente. S’articulant sur trois niveaux, on y accède par le bas sous un généreux couvert. Le socle du chalet, un rez-de-chaussée semi-enterré, comprend un hall d’entrée, un atelier et une chambre d’amis.
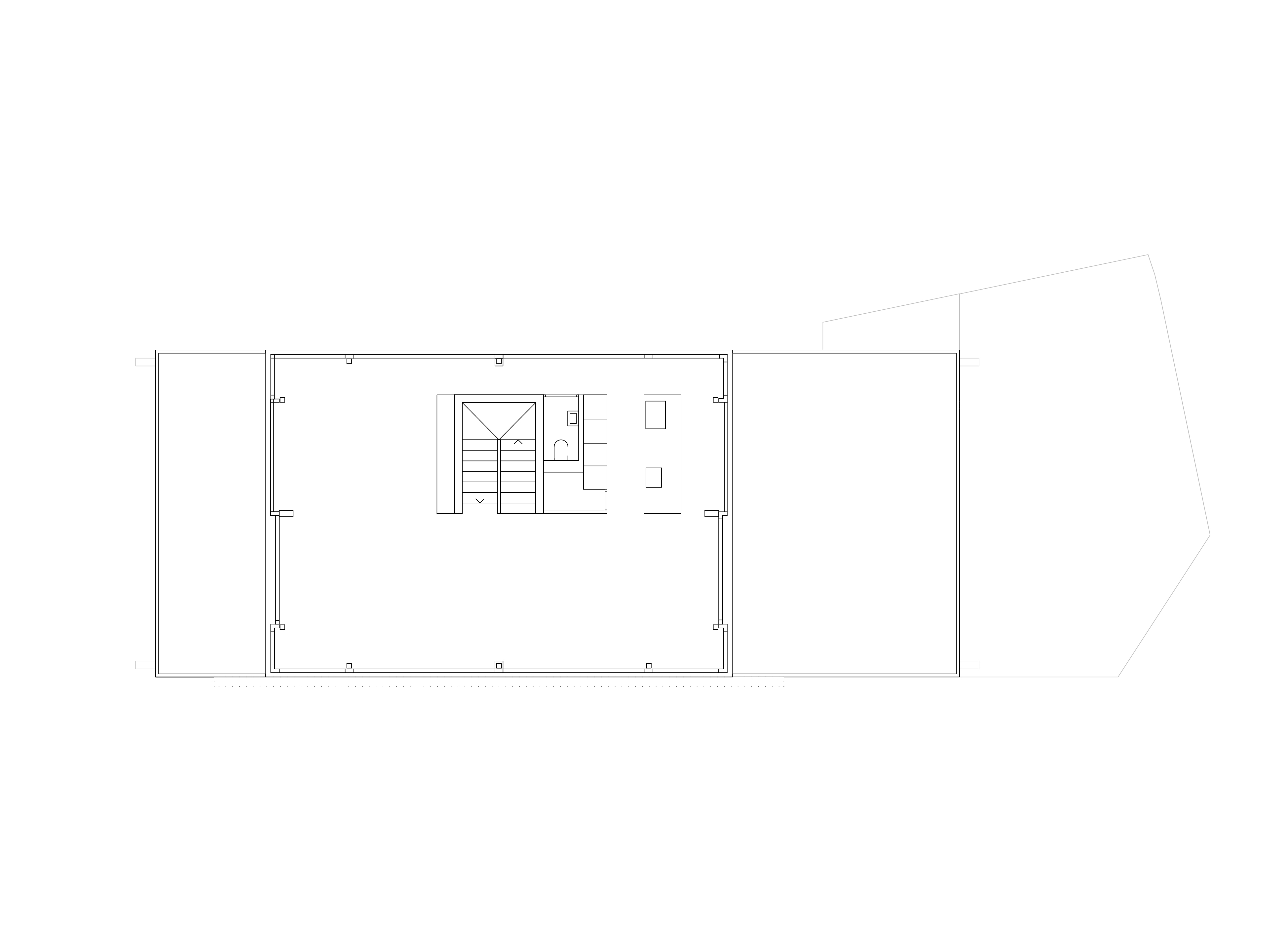
L’étage médian est une parenthèse ouverte à 360° sur le paysage. Entièrement vitré et littéralement baigné de lumière naturelle, l’espace de vie est mis en scène. Orné de part et d’autre d’une terrasse, le premier étage s’organise en plan libre. Au centre, en un bloc massif, la distribution verticale traverse les trois étages.
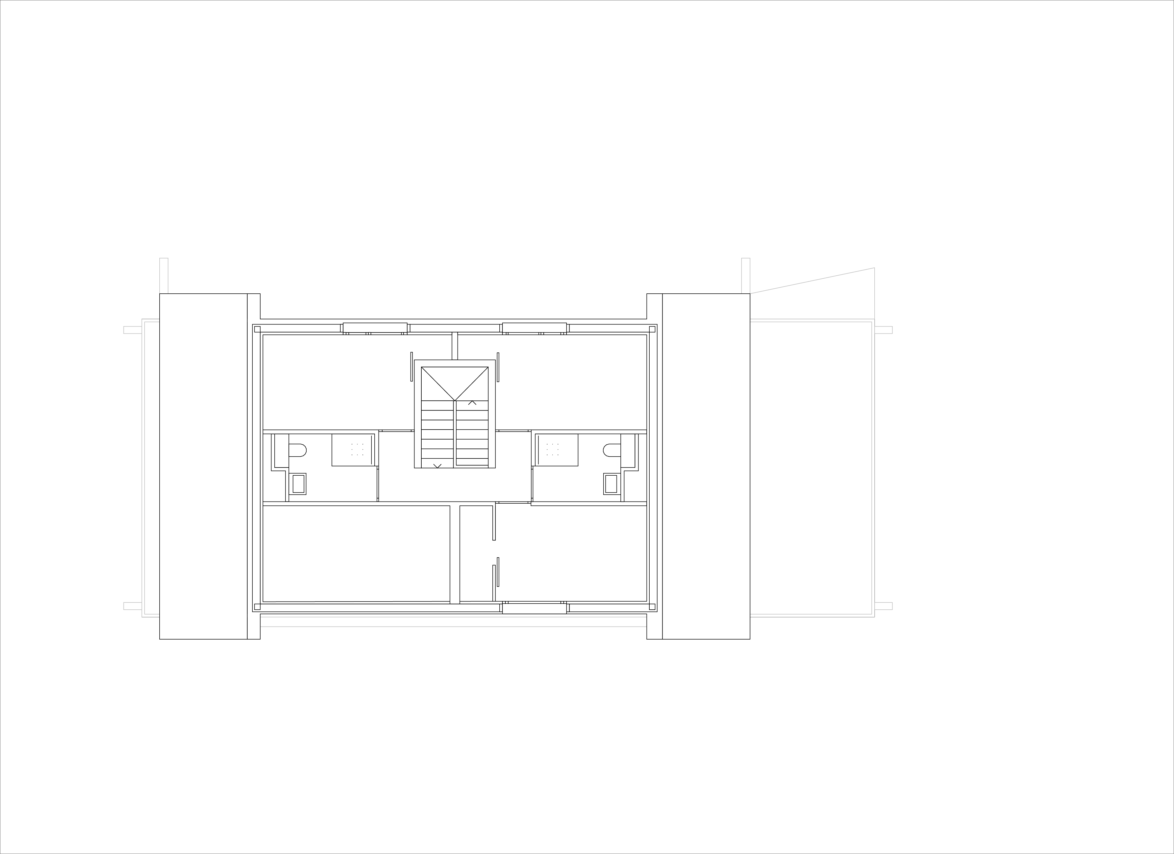
Comme s’ils flottaient sur l’étage central, les combles comprennent trois chambres séparées par une bande fonctionnelle intégrant deux salles de bains. Sur un socle en béton, la structure en bois des combles se prolonge en une charpente qui se déploie pour offrir de généreux avant-toits. La façade en bardage foncé de bois noirci dissimule les fenêtres rondes des étages.
- ClientPrivé
- MandatDirect
- StatutConstruit
- Dates2020 projet / 2021 réalisation
- ProgrammeEspace vie / Espace atelier / 3 chambres
- CollaborateurZoé Imesch
- Ingénieur gcKurmann Cretton Ingénieur SA
- PhotosNicolas Sedlatchek
- Surface280 m2
- Volume800 m3
- typeproject