
LOL —
Immeuble de logements Lens
2016 - 2018

































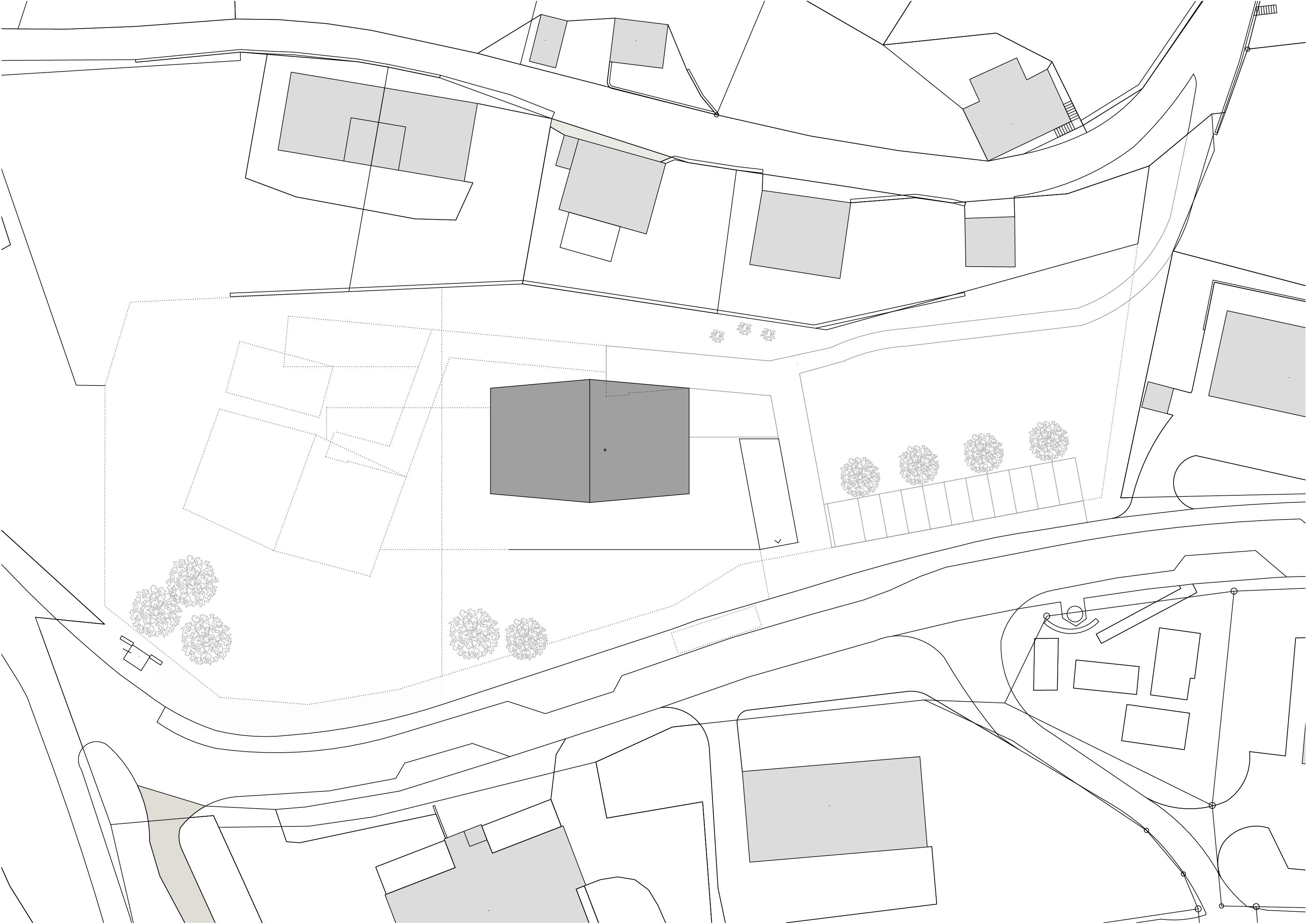
Au pied du beau village de Lens, la paroisse possède un terrain en zone d’habitat collectif, permettant l’implantation de deux immeubles de logements. Le premier immeuble est réalisé pour mettre sur le marché des appartements intergénérationnels pour les habitants de la région. L’immeuble présente une morphologie classique, composée de trois niveaux et un comble coiffé d’une toiture à deux pans, avec son faîte perpendiculaire à la pente. La silhouette du bâtiment se marie au bâti ancien, tout en présentant une expression contemporaine.
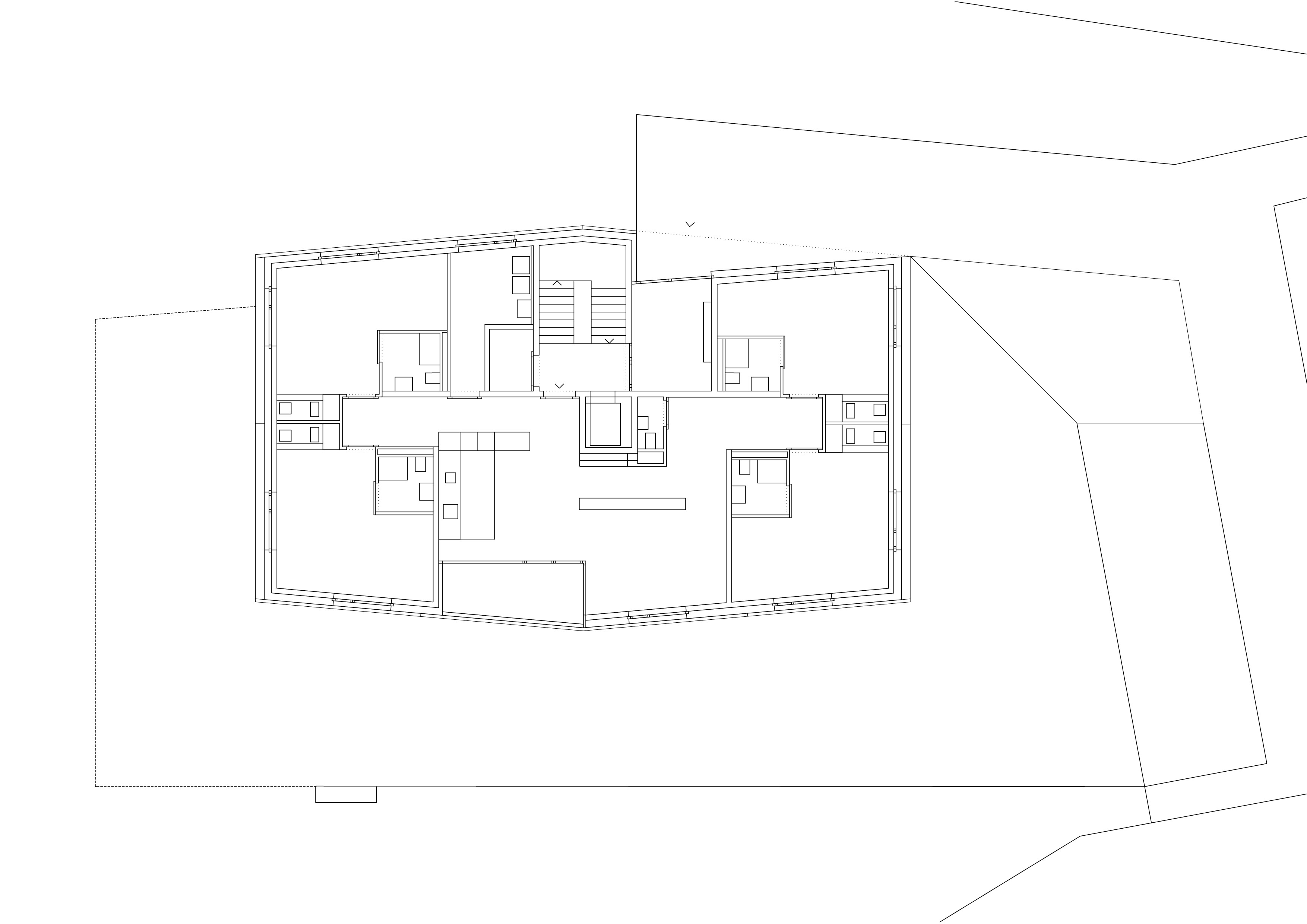
Sa matérialisation décline les matières et teintes présentes sur le site. La modénature des façades propose une alternance de parapets pleins, réalisés en béton préfabriqué sablé, et de bandeaux intégrant les vitrages et les meneaux plaqués d’aluminium anodisé bronze. Le rez-de-chaussée reçoit le logement protégés type Domino pour personnes âgées, soit un appartement communautaire regroupant quatre chambres, chacune équipée d’une salle de bain et d’une cuisinette, et un espace de séjour commun.
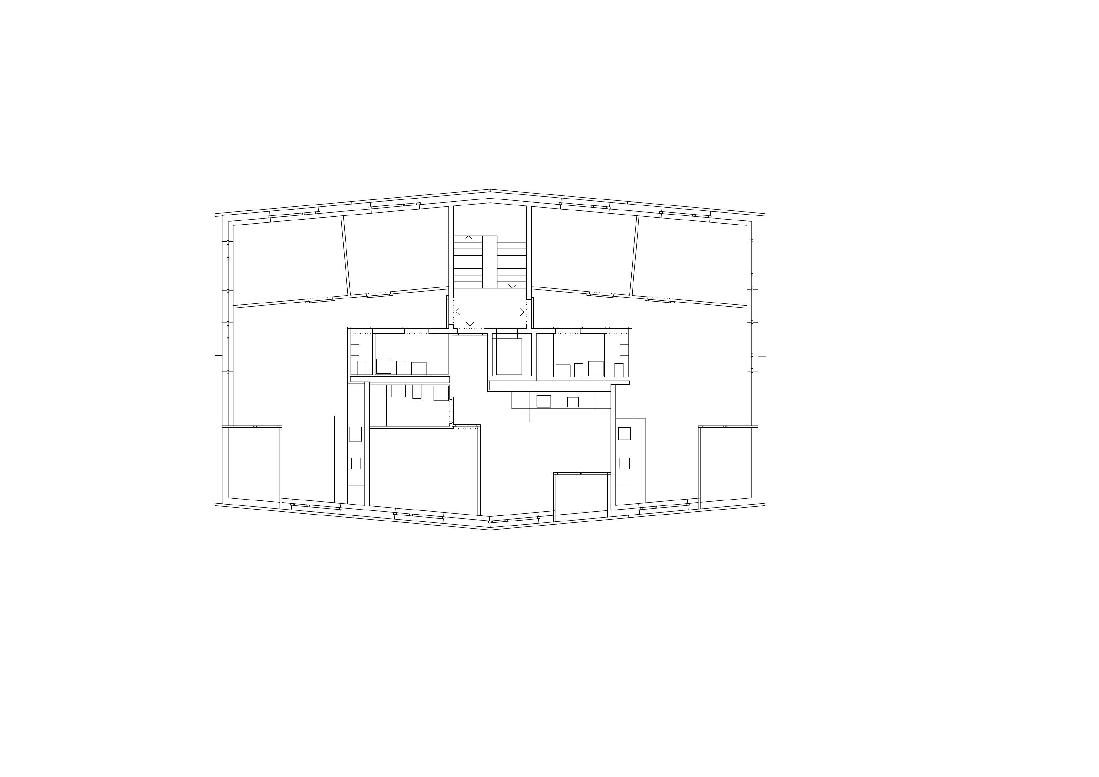
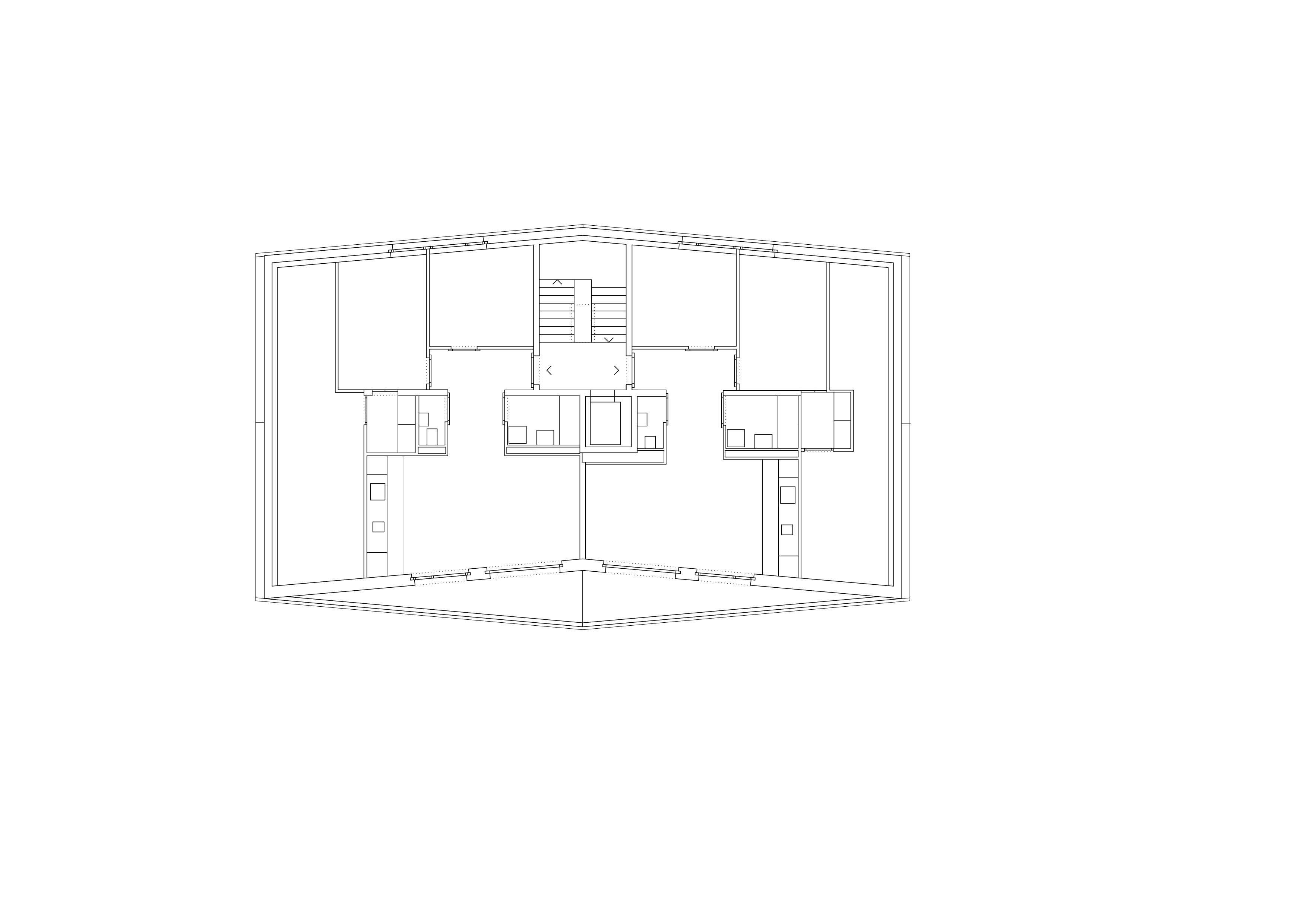
L’étage type offre trois appartements, alors que le comble reçoit deux appartements profitant de la spatialité de la toiture en pente. Les appartements 3 pièces profitent des trois orientations. Ils jouissent de prolongements extérieurs sous forme de loggia d’angle, qui articule l’espace jour de l’appartement. Le béton apparent qualifie les espaces communs, parking et cage d’escalier. La matière brute, sol, mur et plafond, contraste avec les menuiseries peintes des portes palières et du garde-corps de l’escalier, dont la face intérieure est teintée d’un rouge corail. Une palette de teintes chaudes est déclinée dans les salles de bain, alors que les appartements ont des finitions sobres, en tons de blanc et gris sur parquet chêne.
- ClientSecteur pastoral des Noble et Louable Contrées
- MandatMandat Direct
- StatutConstruit
- Dates2016 projet / 2017-2018 réalisation
- Programme1 appartement Domino / 8 appartements / Parking
- CollaborateurCamille Mabillard
- Ingénieur gcCordonier Rey SA
- Ingénieur cvsTecsa SA
- Ingénieur eLami SA
- PhotosNicolas Sedlatchek
- Surface1600 m2
- Volume5000 m3
- CoûtCHF 4'290'000.–
- typeproject