
PSX —
Etablissement médico-social Château-d'Oex
2014 - 2023




















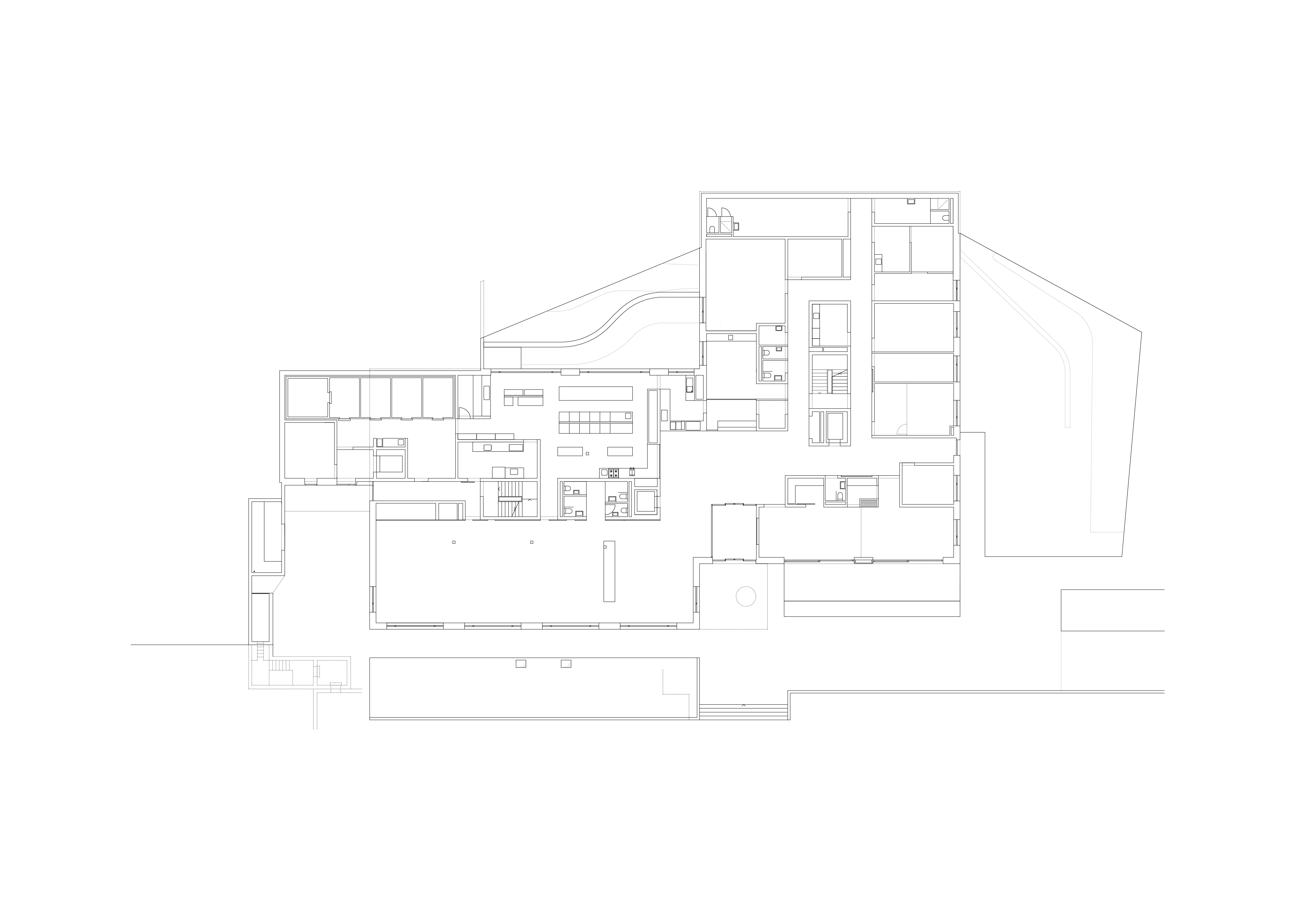
S'inspirant de la structure bâtie du coteau de l'Etambeau, les différents éléments du programme prennent place dans des volumes autonomes, avec gradation de l'ordre dispersé à l'ordre contigu, et par une progression de leurs dimensions. L'établissement médico-social pour personnes âgées (EMS), composé de deux volumes juxtaposés et décalés, profite du dégagement sur le paysage à l'ouest du site. La morphologie parente des différents corps de bâtiments confère une identité à l'ensemble. Les toitures à trois pans offrent une façade pignon sur l'aval, selon la silhouette du bâti environnant, tout en offrant des similitudes avec les pyramides de la toiture de l'hôpital.
L'établissement médico-social est organisé sur trois niveaux hors terre et un sous-sol. Le niveau 0 reçoit l'accueil et les espaces collectifs, organisés en espaces juxtaposés ouverts sur le sud, où se succèdent le séjour commun, le coin cafétéria et la salle-à-manger commune. Les étages organisent les deux unités de soins. Le décalage volumétrique exprime la cohabitation des deux unités de vie formant l'unité de soins. Chaque aile présente une circulation en boucle, favorisant la déambulation et distribuant les chambres ouvertes sur les 4 façades. Les séjours et salle-à-manger d'unité occupent une situation centrale, proche du bureau d'équipe de soins. Une loggia leur offre un prolongement extérieur.
- ClientPôle Santé du Pays-d’Enhaut
- MandatConcours
- StatutConstruit
- Dates2014 concours / 2021-23 réalisation
- Programme50 Chambres / Séjours communs / Service
- CollaborateurNicolas Ulrich / Steve Rossier / Zoé Imesch
- Ingénieur gcWilli Ingénieurs SA
- Ingénieur cvsTecnoservice Engineering SA
- Ingénieur eBetelec SA
- PhotosNicolas Sedlatchek
- Surface3700 m2
- Volume16500 m3
- CoûtCHF 18'510'000.–
- typeproject