
SAX —
Centre d’accueil pour adultes en difficulté Saxon
2011 - 2015






































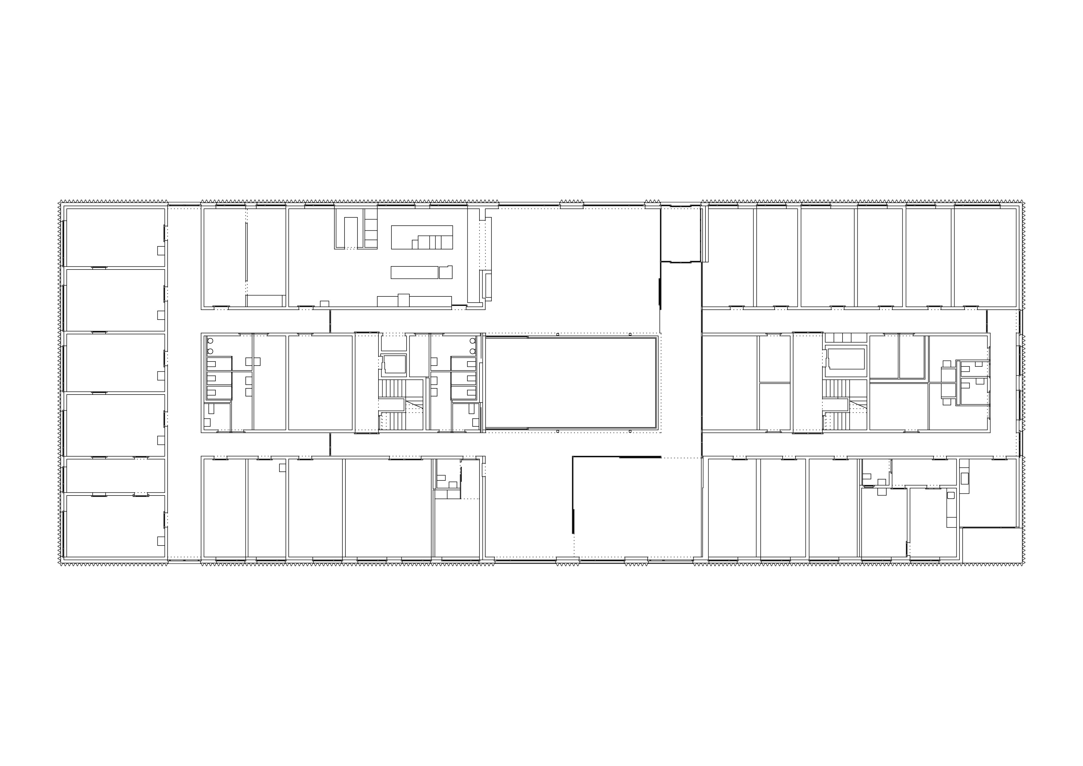
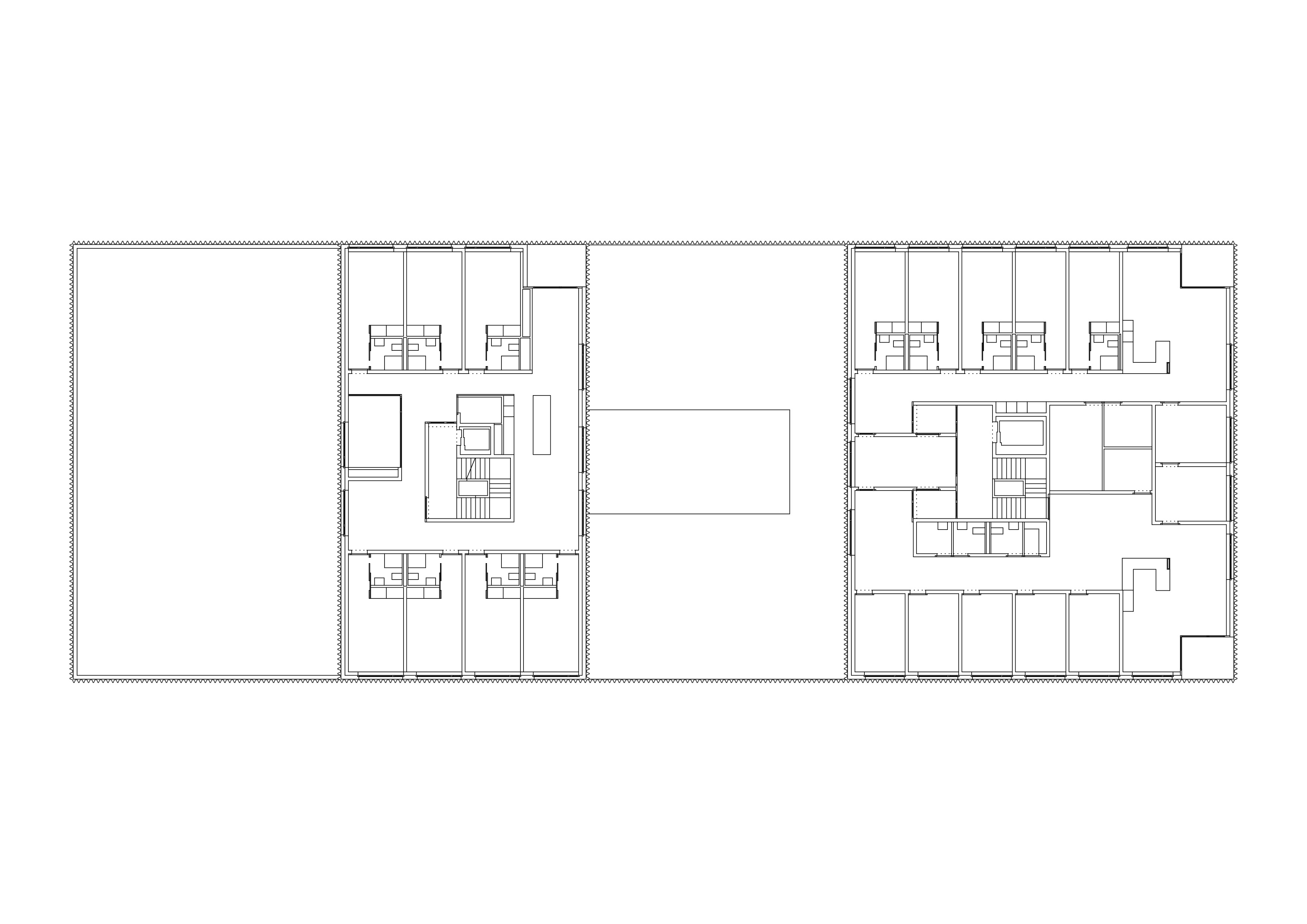
Le centre d’accueil pour adultes en difficulté est un lieu de résidence, de travail et de soin pour des personnes souffrant de troubles psychiatriques, somatiques, sociaux ou découlant d’une addiction, dans le but de leur offrir un cadre de vie sécurisant et structurant en vue d’une réinsertion dans la société. Situé parmi les plantations fruitières de la vallée du Rhône, à mi-distance des villages de Saxon et Charrat, le nouveau centre prend racine dans la structure paysagère du lieu. Le projet rassemble sous un même toit les différentes fonctions. La volumétrie découpée identifie les différents secteurs.
Le rez-de-chaussée regroupe en un grand socle les fonctions communes de part et d’autre du patio central, cœur du centre autour duquel s’articulent les espaces de rencontre, repas et détente. L’aile sud organise les fonctions d’administration, de soins et d’intendance, l’aile nord reçoit les ateliers d’occupation. La position de l’entrée du centre et le patio protègent les résidents du vent dominant remontant la vallée. Les espaces d’hébergement occupent les étages, de manière horizontale pour les urgences sociales et les courts séjours, de manière verticale pour les 3 appartements longs séjours. Les deux types de séjour sont ainsi naturellement séparés et clairement identifiés. Les unités de résidence fonctionnent comme des appartements autonomes.
La matérialisation intérieure est rigoureuse : paroi en béton apparent, sol en asphalte poncé et faux-plafond métallique à grandes ondes, revêtements de parois ou plafond en panneau multiplis pin et verres teintés colorant les espaces communs. Les façades sont revêtues d’un bardage aluminium perforé à profondes ondes et de teinte cuivrée. L’usage d’un matériau industriel est un clin d’oeil au hangar à fruits de la vallée.
- ClientFondation CAAD
- MandatConcours de projets
- StatutConstruit
- Dates2011 concours / 2014-2015 réalisation
- Programme31 chambres / Espaces jour communs et privatifs / Bureaux / Cabinets consultation / Ateliers / Services
- CollaborateurArnaud Zehnder
- Direction travauxNunatak architectes Sàrl
- Ingénieur gcPhilippe Bruchez
- Ingénieur cvsTECSA
- Ingénieur eProtech SA
- PhotosRoland Halbe
- Surface3200 m2
- Volume12440 m3
- CoûtCHF 14'600'000.–
- DistinctionBest Architects 18 / Mentionné
- typeproject