
SBA —
Biopôle / Immeuble Serine Épalinges
2017 - 2020
















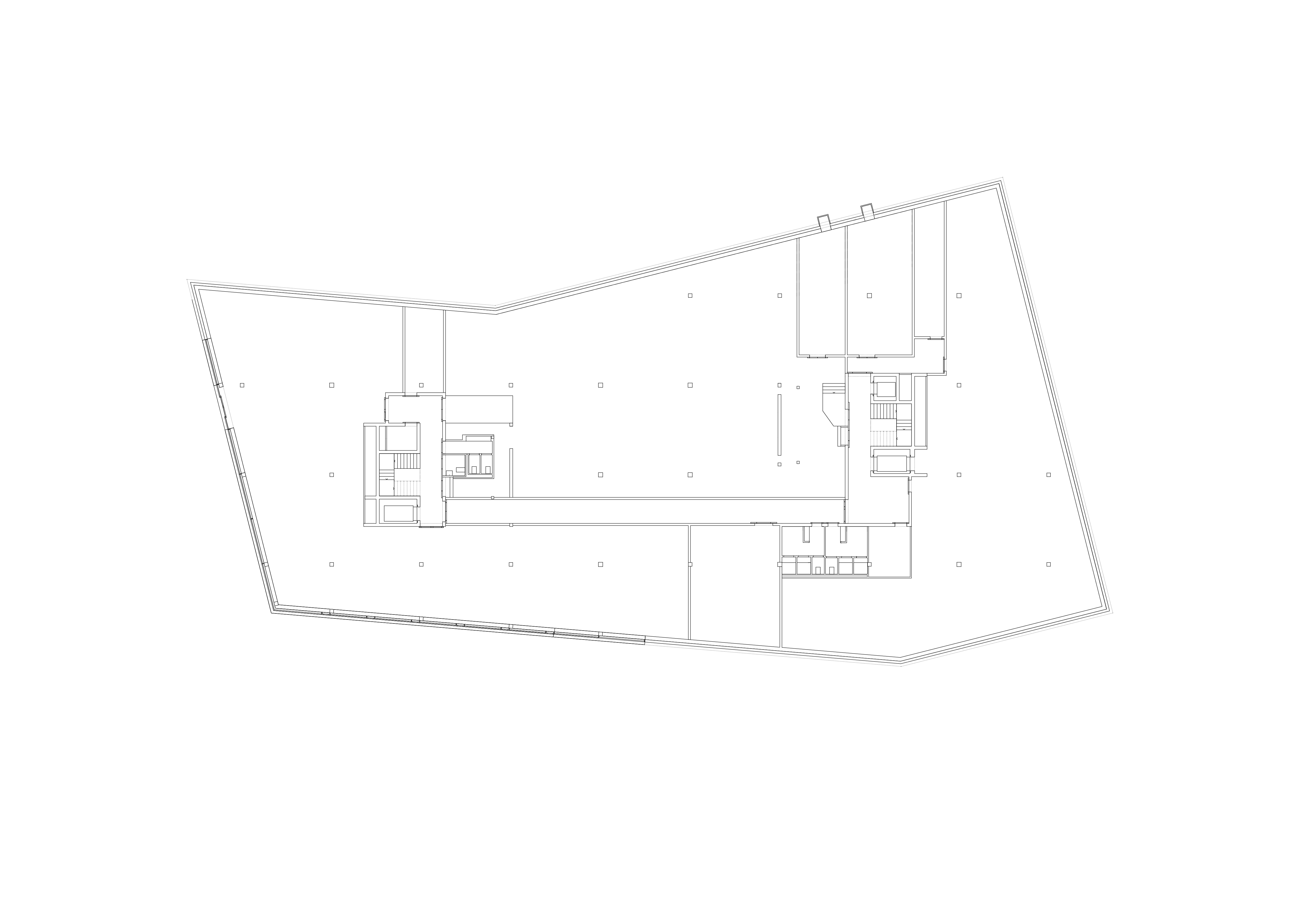
L’Université de Lausanne, l’EPFL et le CHUV, sur le site d’Épalinges, développe son parc scientifique et technologique dédié aux sciences de la vie en l’agrandissant avec six nouvelles constructions entre 2015 et 2024. C’est dans ce contexte que l’immeuble « Serine » contribue à l’élargissement du campus vers l’ouest en se connectant à la route de Berne. La morphologie épouse le contour de la route cantonale par une cassure distinctive. À l’opposé, côté route de la Corniche, le volume se dilate afin d’offrir un parvis à l’entrée des piétons du campus.
Les allèges rythment horizontalement la façade. Un plissé d’inox brossé joue poétiquement avec les reflets du contexte et les variations de lumière au fil des saisons. Les fenêtres en bandeaux, réalisées en menuiserie aluminium, cadrent le paysage du lac et des montagnes. L’immeuble est doté de deux voies de circulation verticale, qui regroupent en leur sein des toilettes et divers locaux répondant aux besoins programmatiques des étages. Ce plan libre poteaux-dalles est laissé brut, sans chape ni revêtement intérieur, permettant une flexibilité totale aux futurs usagers.
- ClientEPIC Swiss Proprety Management
- MandatAppel d'offres ET + Architecte
- StatutConstruit
- Dates2017 projet / 2020 réalisation
- ProgrammeLaboratoires
- CollaborateurSonia Decastroalves / Julien Guitard
- Ingénieur gcWilli Ingénieurs SA
- Ingénieur cvsWeinmann Energies SA
- Ingénieur eMAB-Ingénierie SA
- PhotosNicolas Sedlatchek
- Surface10000 m2
- Volume47500 m3
- Coût25'000'000.–
- Entreprise TotaleHRS Real Estate SA
- typeproject